Lewis International Law Center Harvard Law School

Project Details

Project Name
Lewis International Law Center Harvard Law School
Location
CambridgeMA
Project Types
Institutional
Shared By
Miabelle Salzano
Project Status
On the Boards/In Progress
Year Completed
2021
Size
50,448 ft²

Project Description

FROM THE ARCHITECTS:

We are currently redesigning the Lewis International Law Center at the Harvard Law School to create a 21st century learning and work environment for students, faculty, and staff, as well as research affiliates and law clinic clients.

The project adds to and transforms a 1959 modernist building originally designed by Shepley Bulfinch Richardson & Abbott with a new entrance, increased teaching and office space, a new circulation system, and high-performance facade. Metal and glass additions complement the original limestone, metal, and glass building and create a subtle dialog between old and new. A new floor is added to the top of the building and formerly opaque walls are opened up with glass to bring natural light into the core of the building.

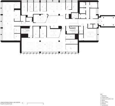
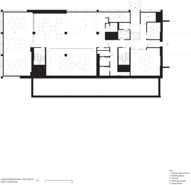
Inside, library stacks are removed to create interlocking spaces that foster collaboration, learning, and co-working. Flexible conference and meeting rooms and collaborative areas encourage interdisciplinary work. At the same time, discreet areas are separated for focused work, including study carrels, private offices, and client consultation rooms. The project also houses a cutting-edge research center on law and cyberspace for the Berkman Klein Center for Internet & Society.

Project Credits
Project: Lewis International Law Center, Harvard Law School, Cambridge, Mass.
Client: Harvard University
Architect: Deborah Berke Partners, New York. Deborah Berke, FAIA; Ameet Hiremath, project lead; Brendan Lee, AIA, project manager; Elizabeth Chadkin, project manager, interior design
Structural Engineer, Envelope Consultant: Simpson Gumpertz & Heger
M/E/P / FP Engineer: Altieri Sebor Wieber
Landscape Architect: Michael Van Valkenburgh Associates
Civil Engineer: Nitsch Engineering
Geotechnical Consultant: Haley & Aldrich
Sustainability Consultant: Atelier Ten
IT/AV and Security Consultant: Cerami
Signage Designer: A Freeman

Upcoming Events

  • Design Smarter: Leveraging GIS, BIM, and Open Data for Better Site Selection & Collaboration

    Live Webinar

    Register for Free
  • Slate Reimagined: The Surprising Advantages of Slate Rainscreen Cladding

    Webinar

    Register Now
  • The State of Residential Design Today: Innovations and Insights from RADA-Winning Architects

    Webinar

    Register for Free
All Events