Learning Terraces

Project Details

Project Name
Learning Terraces
Location
ShenzhenCHINA100051
Project Types
Education
Shared By
PAO
Project Status
Built
Year Completed
2021
Team
Principals: He Zhe, James Shen, Zang Feng
Project Leader: Li Zhenghua
Project Team: Tang Yanni, Xu Jialing, Kong Ming, Gao Pengfei, Zhang Xian, Zhu Zhonghui, Cai Yuhan, Zhang Chi, Yang Yuting, Wang Yibo, Tan Tan, Gu Naiquan, Xia Xin, Liu Ruochen, Li Qiuwan

Project Description

Fuqiang elementary school is designed to support new ways of learning to feed Shenzhen’s growing thirst for creative talent and innovation to feed its rapidly expanding economy.

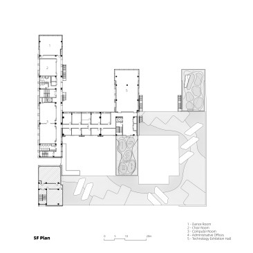
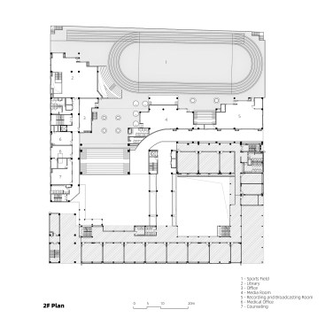
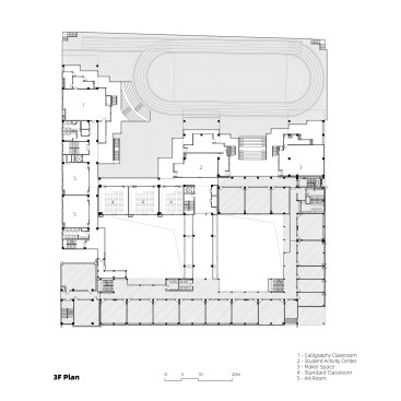
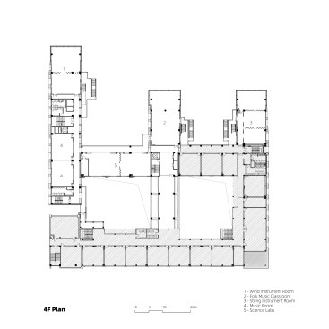
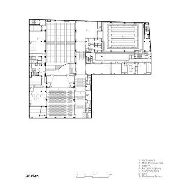
To inspire curiosity and passion for exploration the school is designed around the idea of ‘hybrid space’. Space takes on the role of the ‘third teacher’ and functions as an integral part of student’s education. Different programs and activities are juxtaposed together in three dimensions to offer new connections across different levels. For example standard classrooms, special classrooms, and the athletic field are adjacent to one another to support cross-disciplinary interaction. Students in the library on the first floor can look down into performances in the theater and activities in the gym in the basement level.

A diverse offering of spaces allows students and teachers the flexibility to customize the experience of teaching and learning for students of different ages and interests. Roof top gardens, medium size courtyards, and small terraces are different outdoor learning spaces that can allow for different size gatherings and meet different learning needs. Wide circulation areas and steps that double as seating are informal spaces that can accommodate different activities and program. Small seating areas are also integrated into the facade to offer students intimate space when they require a moment of quiet. By occupying the facade, different learning activity of students also become the face of the school.

The design helps students learn by providing opportunities to connect with the real world, bridging between study and real life experience. Indoor and outdoor spaces flow into one another and are both treated as learning spaces. This allows students to stay in touch with the outdoors. Greenery is integrated into the campus and distributed horizontally and vertically throughout the school to ensure students stay close to nature and learn from it.

Creative learning that is physical, experience based, and performative is celebrated and located in elevated glass classrooms. Activities such as performing music, making art, and dance can be easily seen and appreciated from other locations in campus. Facing a major road to the north, these cantilevering spaces also project the creative character of the school towards the city.

The new campus doubles the size of the original campus and makes high quality education and innovative learning accessible to more students. The design brings together the old school buildings, a dedicated STEAM education building, and new classrooms and facilities into an integrated whole. Fuqiang School’s excellent educational heritage remains as the campus is upgraded to meet the demands of the next generation.

Upcoming Events

  • Design Smarter: Leveraging GIS, BIM, and Open Data for Better Site Selection & Collaboration

    Live Webinar

    Register for Free
  • Slate Reimagined: The Surprising Advantages of Slate Rainscreen Cladding

    Webinar

    Register Now
  • The State of Residential Design Today: Innovations and Insights from RADA-Winning Architects

    Webinar

    Register for Free
All Events