Learning Resource Center | Suffolk County Community College

Project Details

Project Name
Learning Resource Center | Suffolk County Community College
Location
BrentwoodNY
Architect
ikon.5 architects
Project Types
Education
Project Scope
New Construction
Shared By
mdeak
Project Status
Built
Year Completed
2017
Size
68,000 ft²
Certifications & Designations
LEED Gold

Project Description

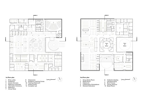
The Learning Resource Center at Suffolk County Community College is a lantern of learning. The building is a prism for illuminating the interior spaces during the day and a beacon for illuminating the campus during the night. A simple nine square cube deploys the 70,000 square foot library program on two floors. Portions of the cube are removed to allow natural light to penetrate deep within the building, thus a majority of spaces have access to day light and view. A central lantern houses an information commons, the collaborative learning room of the college, and rises above the roof line of the library to become a visible cupola on the campus. The lantern can be clearly seen from any part of the academic mall and from the east and west commuter parking lots.

The Learning Resource Center siting reinforces the masterplan and places the Center’s entry at the confluence of major pedestrian pathways that connect surface parking lots of this commuter campus at its gateway entrance. The exterior is a ventilated terra cotta rain screen façade. The white terra cotta distinguishes this central facility from its surrounding red brick campus neighbors and is one of a series of design strategies used to achieve a more sustainable building. A portion of the second floor is removed on the south side to create a green contemplative roof garden for outdoor reading and study while also reducing storm water requirements. Radiant slab heating and cooling in the central information commons beneath the lantern efficiently provides comfort to the patrons without heating and cooling the entire volume.

The Learning Resource Center program provides space for both dynamic social learning afforded by the collaborative program activities of the Information Commons and the traditional quiet single scholar studying in the collection and reading room areas. The Information Commons houses individual and team computer workstations, the technology and reference help desks, group study rooms and casual reading areas. It is a central dynamo for stimulating productive collisions between students and faculty. Adjacent to the Information Commons is the Center for Academic Excellence and the Writing Center. This program is prominently located on center of the Information Commons as an extension of the collaborative and social learning environment of the Information Commons. As one moves further away from the center of the building, the program spaces become more private, less collaborative and more quiet and introspective. The Learning Resource Center also includes classrooms, tutoring center, media center, a faculty athenaeum and the college board room. Public access program spaces, such as the auditorium and gallery are located outside of library security as to permit their use beyond library operation.

Upcoming Events

  • Design Smarter: Leveraging GIS, BIM, and Open Data for Better Site Selection & Collaboration

    Live Webinar

    Register for Free
  • Slate Reimagined: The Surprising Advantages of Slate Rainscreen Cladding

    Webinar

    Register Now
  • The State of Residential Design Today: Innovations and Insights from RADA-Winning Architects

    Webinar

    Register for Free
All Events