Le 1650

Project Details

Project Name
Le 1650
Architect
A2DESIGN
Project Types
Mixed-Use
Project Scope
New Construction
Shared By
angcook21
Project Status
Built
Year Completed
2014

Project Description

FROM THE ARCHITECTS: 

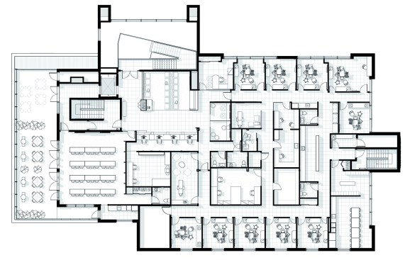
Gestion immobilière 1650 recently held the official inauguration of a 3,700 m2mixed-use building, Le 1650.

The multidisciplinary firm, A2DESIGN, developed the plans for the entire structure in addition to overseeing its actual construction. Le 1650 includes a main level available for lease, while the 1st and 2nd floors house clinics belonging to co-owners, Dr. Daniel Godin, orthodontist, and Dr. Alain St-Onge, dentist. Crowning this new facility is a sweeping rooftop terrace, adjacent to a conference room fashioned for training purposes.

The idea was to create and build a modern facility, bold in design with a unique signature style and sharp angles to clearly distinguish the final product, while maintaining a simple sober look for a more seamless integration into the surrounding environment. Distinctive traits include the building bulk and protective aluminium canopy connecting the main entrance to the parking area. Expansive windows disseminate an abundance of natural light into the neutral-toned minimalist, aesthetic spaces.

Gestion immobilière 1650 takes the environment seriously. Thanks to this conscientious stance, A2DESIGN was able to put forward eco-friendly solutions, namely the use of noble and sustainable materials, sourced locally for the most part. Furthermore, a geothermic system of ground-source heat pumps, also known as an Earth-Energy System (EES), has been installed. This network is made up of 24 wells dug to a depth of 150 meters in order to draw heat up from the ground in winter and redirect it back in the summer months, rendering the building remarkably energy efficient: one kilowatt of electricity returns between three to four kilowatts of heat. All lighting fixtures are LED to reduce energy consumption and extend fixture lifecycle. The parking area has been outfitted with charging stations for electric vehicles.

As a result of this endeavour, A2DESIGN has contributed to the enhancement of the image conveyed by Dr. Alain St-Onge’s dental clinic along with the upgrade of his new offices, including the state-of the-art treatment rooms and inviting consult room. To soften the aseptic atmosphere, they incorporated oak-stained furnishings and beams, while subtly accentuating the walls using architectural details in linear patterns similar to those found on the clinic’s stationery. 

Upcoming Events

  • Slate Reimagined: The Surprising Advantages of Slate Rainscreen Cladding

    Webinar

    Register Now
  • The State of Residential Design Today: Innovations and Insights from RADA-Winning Architects

    Webinar

    Register for Free
  • Specifying Smarter with Copper-Clad Aluminum (CCA) Metal-Clad Cable

    Webinar

    Register for Free
All Events