Latymer Upper School Sports Centre

Project Details

Project Name
Latymer Upper School Sports Centre
Location
King StreetLondonUNITED KINGDOMW6 9LR
Project Types
Shared By
eddshanks
Project Status
Built
Year Completed
2016
Style
Modern

Project Description

The elegant and efficient sports centre at Latymer Upper School maximises the available space on a tightly constrained site, to create a centre for sporting excellence and ambition.

Latymer Upper School is an independent school for 1,200 pupils in Hammersmith, west London. The existing sports facilities were completed in 1980 and served the school well, helping to establish its reputation for sporting excellence. Fast forward to 2014, and the building was no longer fit for purpose.

The school’s ambition to maintain this strong sporting pedigree led to the decision to redevelop its existing offer with a state of the art swimming pool and sports centre. It was hoped that this would not only cultivate the next generation of world-class athletes, but also develop a wider appreciation of fitness and wellbeing within the whole student body.

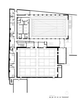
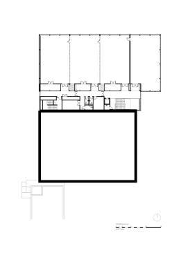
The ambitious brief established the need for; a six lane swimming pool (25m) with a floating floor, to enable a water depth of two metres for speed orientated competition swimming, and shallower water for teaching and community use; spectator seating; fitness suite; three large multi-purpose studios which could be combined to produce an exam hall; renovation of the existing six court sports hall; and support accommodation for staff.

The site presented considerable challenges from both a physical perspective and a planning context.

The physical constraints included; a pedestrian underpass beneath the A4, a busy arterial route which arrives on the site in the centre of the northern boundary; and the existing sports hall, which had to remain in its present position. These constraints largely dictated the location of the new building, which would need to fill the available site to accommodate the school’s requirements.

From a planning perspective, whilst this was replacing an existing facility, the site was located within the vicinity of two listed buildings in a conservation area.

The design solution linked the two simple geometric volumes of the sports hall and pool block with a spine of accommodation that encompasses the main horizontal and vertical circulation routes. By stacking the studio spaces on top of the pool hall, this block supports a wide range of activities in a very small footprint. The creation of a large basement allowed for much of the building’s plant to be removed from the main body of the plan. This has the benefit of increasing the available space for the core functions and reducing the overall height of the structure, thereby producing a very elegant and efficient building.

Externally, the expression of the building is very simple and restrained, with a palette of fibre-cement and glass. The primary volumes of the sports hall and swimming pool are clad in grey fibre–cement panels, modulated with different shades and sizes. The studio space is expressed as a cast-glass box ‘floating’ above the perimeter wall. Utilising a mixture of clear and translucent panels, the movement within the studios will present a constantly changing appearance: a living canvas which will, through shadow and silhouette, animate the elevation by day and night.

Upcoming Events

  • Design Smarter: Leveraging GIS, BIM, and Open Data for Better Site Selection & Collaboration

    Live Webinar

    Register for Free
  • Slate Reimagined: The Surprising Advantages of Slate Rainscreen Cladding

    Webinar

    Register Now
  • The State of Residential Design Today: Innovations and Insights from RADA-Winning Architects

    Webinar

    Register for Free
All Events