Larson Bay Waterfront

Project Details

Project Name
Larson Bay Waterfront
Location
West Vancouver
Project Types
Shared By
dmadsen
Project Status
Built
Size
10,994 ft²

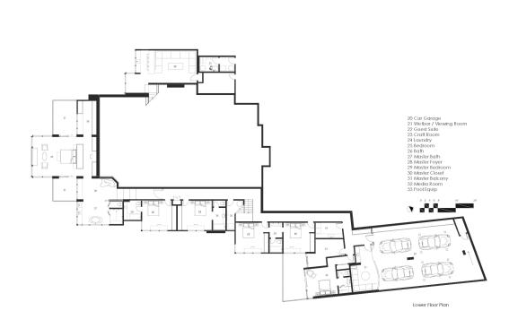
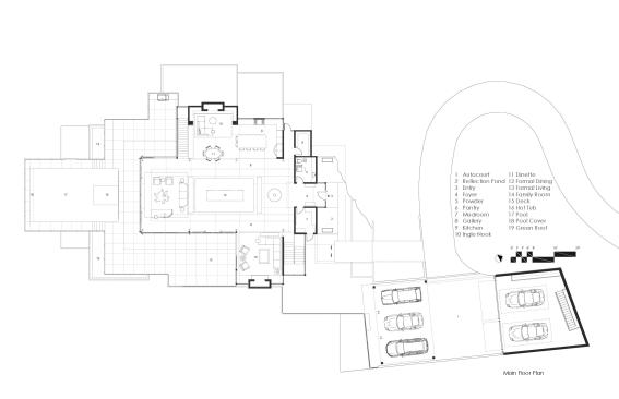
Project Description

This residence on the waterfront of Larson Bay outside in West Vancouver utilizes strong horizontal geometry to maintain a low, unassuming profile midst the surrounding terrain and forest. A long, linear form creates a focal point and axis along the major view out over the water. To mask its size, the home carves into the site – which is composed predominantly of solid rock – tucking most spaces away from the view of passersby. Floor-to-ceiling windows and radical cantilevers provide both private and public spaces with 180 degree views.

Upcoming Events

  • Design Smarter: Leveraging GIS, BIM, and Open Data for Better Site Selection & Collaboration

    Live Webinar

    Register for Free
  • Slate Reimagined: The Surprising Advantages of Slate Rainscreen Cladding

    Webinar

    Register Now
  • The State of Residential Design Today: Innovations and Insights from RADA-Winning Architects

    Webinar

    Register for Free
All Events