Lantern House

Project Details

Project Name
Lantern House
Project Types
Shared By
dmadsen
Project Status
Built
Size
2,682 ft²

Project Description

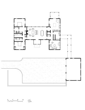
Our clients asked for a modern design that would recognize and respect its rural New England setting. The white-painted, wooden gabled forms of the New England farmhouse are here reinterpreted in a crisp, abstracted composition. The glassy, lantern-like entry, with its unusual cantilevered entry roof, creates a prow-shaped canopy and signals the open, expansive space within.

The center of the H-plan is occupied by a high-ceilinged living and dining room and a wall of glass doors opening onto a courtyard terrace. The H-plan insures that all the rooms have multiple exposures for good ventilation, sunlight throughout the day, and views of the bucolic site.

A single floor plan, using an innovative concrete on metal decking floor system, allowed for such universal design elements as flush thresholds, ADA-compliant doors and hardware. This project deserves an award as its simple, modest design reflects a historic setting with a modern sensibility.

Upcoming Events

  • Slate Reimagined: The Surprising Advantages of Slate Rainscreen Cladding

    Webinar

    Register Now
  • The State of Residential Design Today: Innovations and Insights from RADA-Winning Architects

    Webinar

    Register for Free
  • Specifying Smarter with Copper-Clad Aluminum (CCA) Metal-Clad Cable

    Webinar

    Register for Free
All Events