Lakefront Kitchen Remodel

Project Details

Project Name
Lakefront Kitchen Remodel
Location
SalisburyMD
Project Types
Shared By
dmadsen
Project Status
Built
Size
408 ft²

Project Description

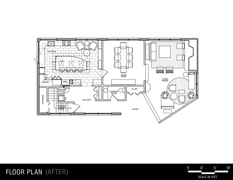
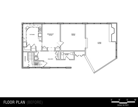
The fundamental challenge of this dramatic makeover was to convert cramped, outdated kitchen, breakfast, dining and living areas into expansive, open, light filled spaces for both intimate dining and large entertaining events. Some of the challenges were working around existing in-ceiling heat piping, an existing staircase headroom, hallway access openings, wall removal, and existing exterior masonry window openings. Plumbing and HVAC also posed challenges in integrating existing framing and systems to the new configuration. The existing design possessed a dark, introverted feel that did not capture the beauty of this unique lakefront space. Awkwardly juxtaposed previously with dark colonial details and furnishings, the new design solution captures the essence of the home’s mid-century modern architecture. Removing walls & replacing windows made way for sleek custom lacquered European cabinetry, pearlescent seashell tiles and premium energy efficient appliances anchored by the mammoth Cambria island. The sleek white countertops are graced with a subtle gray veining that echoes the cabinetry. The islands curved shape at one end carves out a sitting area next to the TV for inclusion of other family activities within the eating area, where swivel chairs can also pivot to the waterfront view. A modern retro design approach respecting the homes mid-century origins blends seamlessly while advancing the spaces into a current relevant modernity. Custom locally crafted “Chihuly” style glass pendants add unexpected organic artistic flair within the otherwise clean linear design, while careful placement of orange tones warm and unite the cool sleek environs. Accent color inspiration was derived from the clients existing sentimental oil painting of peaches. This transformation resulted in a bright, cheerful expansive gourmet cooks kitchen with all the modern amenities for entertaining in this empty nesters home.

Upcoming Events

  • Design Smarter: Leveraging GIS, BIM, and Open Data for Better Site Selection & Collaboration

    Live Webinar

    Register for Free
  • Slate Reimagined: The Surprising Advantages of Slate Rainscreen Cladding

    Webinar

    Register Now
  • The State of Residential Design Today: Innovations and Insights from RADA-Winning Architects

    Webinar

    Register for Free
All Events