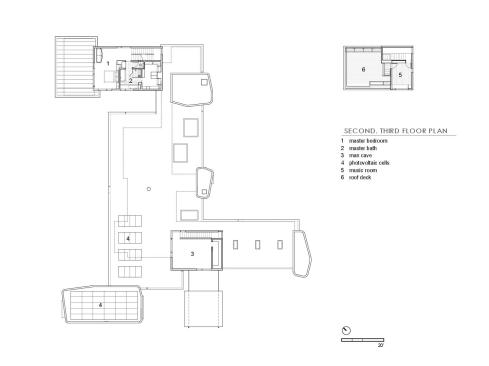
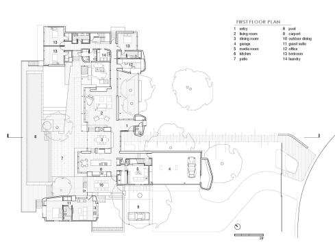
Lake View Residence

Project Details

Project Name
Lake View Residence
Location
AustinTX
Project Types
Shared By
dmadsen
Project Status
Built
Size
5,934 ft²

Project Description

Architecture occurs at the site of conflicts: where the desire for view conflicts with the desire for protection from the western sun, where the desire for lightness conflicts with the requirements for structure, where the desire for mystery conflicts with pragmatism, where the desire for connection conflicts with the desire for privacy, and where the desire for permanence conflicts with the desire for serendipity. In the Lake View Residence, these conflicts provide the direction for the design.

An unparalleled view west over the Bright Leaf preserve and up the Colorado River, and the desire to live casually amidst a collection of mature live oak trees combine to make a powerful circumstance for this family of four. The new home emphasizes view and a dynamic spatial sequence while at the same time creating an abstract backdrop for the serendipity of light, circumstance and view.

The visitor arrives, meandering under a grove of ancient trees into an intimate entry sequence of limestone, vertical cypress and verdant planting. Still unaware of the expansive panorama to come, views are revealed slowly — with carefully framed vistas inviting expectations of what is to come, and the pursuit of which leading to new discoveries.

An unmitigated ceiling plane provides a surface for reflected lighting and creates a sense of continuity while a delicate window wall accentuated by monolithic corner glazing connects the interior to the out-of-doors. Inside, a rich palette of materials and purpose-made cabinetry punctuate the ensemble to add a sense of finesse and offer points of stasis to the compelling and omnipresent view.

Upcoming Events

  • Design Smarter: Leveraging GIS, BIM, and Open Data for Better Site Selection & Collaboration

    Live Webinar

    Register for Free
  • Slate Reimagined: The Surprising Advantages of Slate Rainscreen Cladding

    Webinar

    Register Now
  • The State of Residential Design Today: Innovations and Insights from RADA-Winning Architects

    Webinar

    Register for Free
All Events