Lake Point House

Project Details

Project Name
Lake Point House
Location
New LondonNH
Project Types
Single Family
Project Status
Built
Year Completed
2016
Size
12,709 ft²

Project Description

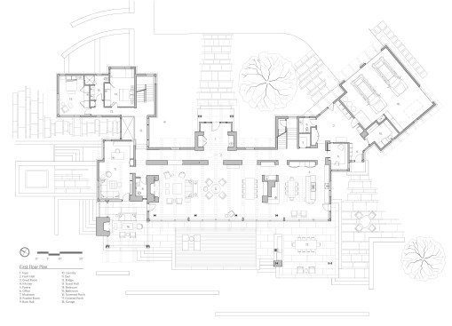
An interpretation of New Hampshire lakeshore vernacular, Lake Point House expresses the essence of its site– the land, the water, the trees, and the light. It is arranged in concentric rings, with the kitchen/ informal dining space at the center. Anchored by a fireplace, the room has places to lounge, eat, and cook. Together, with the master suite above, it forms a small house within the bigger house that feels intimate and comfortable when just a few people are at home. Beyond the kitchen is the great room, a large entertaining space seen first from the front door. The view to the lake beyond is framed by a steel moment frame, though wall of sliding glass panels. Opposite the glass wall, a massive white-painted shiplap wall creates a sense of enclosure and balance for the harder, more rugged materials in the space. Hand-split, sky-lit granite walls bookend the room. Crafted by a local welder, custom steel and glass fireplace doors roll out from pockets in the stone chimney. The Douglas fir beams, imagined as an extension of the surrounding trees, soar out toward the water, and minimize the threshold between inside and out.

Upcoming Events

  • Design Smarter: Leveraging GIS, BIM, and Open Data for Better Site Selection & Collaboration

    Live Webinar

    Register for Free
  • Slate Reimagined: The Surprising Advantages of Slate Rainscreen Cladding

    Webinar

    Register Now
  • The State of Residential Design Today: Innovations and Insights from RADA-Winning Architects

    Webinar

    Register for Free
All Events