Lake Minnetonka Retreat Home

Project Details

Project Name
Lake Minnetonka Retreat Home
Location
MinnetonkaMN
Project Types
Shared By
dmadsen
Project Status
Built
Size
8,667 ft²

Project Description

Lake Minnetonka, just twenty miles west of Minneapolis, has historically provided relief from hot summers in the city. Early homes on the lake were seasonal and modest, but slowly, over time this use has evolved to year-round residences and large estates. This family retreat returns the site to its original use as a retreat from the daily routines of the city, privately embedding family life on the lake.

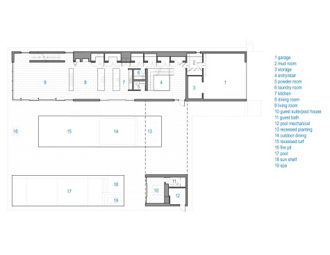
Two overlapping forms, one clad in black stained cedar the other natural, form a broad portal that frames a view toward the lake, and creates an outdoor pool courtyard. The black volume which contains the main living area and master suite runs perpendicular to the lake. The long leg of the L sits on the ground with the short leg, the master suite, on top. The children’s wing, defined in clear stained cedar siding, runs parallel to the shoreline, spanning from the small pool room across the portal to the courtyard and lake, resting on the main living wing. The intersection of these two volumes is defined by vertical space, lit from a large skylight opening above. A black steel stair connects the three levels of the home.

The house is conceived as a sequential experience. The approach road curves through dense woods. As the road leaves the woods, the view is framed by dense evergreen planting to the south. A parking court is defined by the remnants of the former cottage, a barn and playhouse. The portal framing views of the water punctuates arrival at the residence. The entrance hall with its black steel stair and large sky-lit opening create a vertical connection to the sky. The long volume of living spaces creates a telescopic view of the lake while sliding doors along the courtyard create a panorama of the family activities centered on the pool courtyard.

Upcoming Events

  • Design Smarter: Leveraging GIS, BIM, and Open Data for Better Site Selection & Collaboration

    Live Webinar

    Register for Free
  • Slate Reimagined: The Surprising Advantages of Slate Rainscreen Cladding

    Webinar

    Register Now
  • The State of Residential Design Today: Innovations and Insights from RADA-Winning Architects

    Webinar

    Register for Free
All Events