Laidley Street Residence

Project Details

Project Name
Laidley Street Residence
Location
290 Division StreetSuite 303San FranciscoCAUSA94103
Project Types
Single Family
Project Scope
New Construction
Shared By
Owner
Project Status
Built
Year Completed
2014
Style
Modern
Size
3,961 ft²
Certifications & Designations
LEED Platinum

Project Description

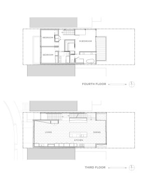
A rare empty lot in the Glen Park neighborhood of San Francisco served as the site for this ground-up residence. The design goal of the project was to harness natural light throughout the day, capture views of a wind-swept park, and to make a strong visual connection to the split-level road at the front of the property. At the main living level, a continuous wall of rift-sawn oak veneer cabinetry runs the full length of the building tying the living area, kitchen, and dining area into one cohesive space.  Floor-to-ceiling glass at the master suite and dining area opens the interior spaces to a dramatic view of downtown San Francisco.

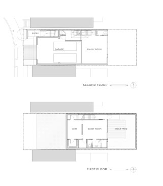
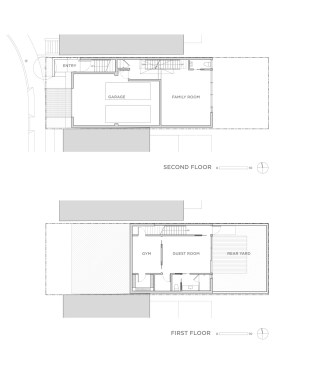
The living/kitchen/dining floor is located one level above the street to provide easy access from the sidewalk and garage. This places the three bedrooms on the top floor, perched above the city for inspirational views at the beginning and end of each day. A guest bedroom is located at the lower level with a direct connection to the rear yard via floor-to-ceiling sliding glass doors. Given the narrow site, a simple straight-run stair is located along the north property line wall, allowing for an open floor plate and the ability to look through the building from the split-level street at the front of the property. Traditional notions of privacy between the public and residential realms are therefore challenged.

Upcoming Events

  • Design Smarter: Leveraging GIS, BIM, and Open Data for Better Site Selection & Collaboration

    Live Webinar

    Register for Free
  • Slate Reimagined: The Surprising Advantages of Slate Rainscreen Cladding

    Webinar

    Register Now
  • The State of Residential Design Today: Innovations and Insights from RADA-Winning Architects

    Webinar

    Register for Free
All Events