Laguna Beach Bungalow

Project Details

Project Name
Laguna Beach Bungalow
Project Types
Shared By
J Linnert architecture
Project Status
Built
Year Completed
2006

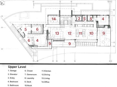
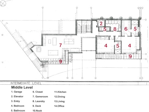
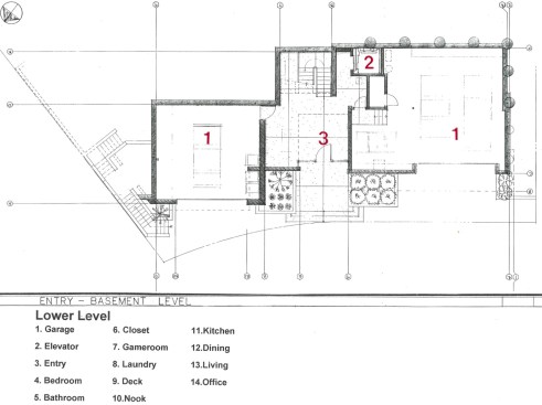
Project Description

Inverted floor plan to capitalize upper level ocean views
Glass door pocket away blurring exterior and interior boundaries
Hydronic radiant floor heating Natural ventilation cooling
Arched roof planes concentric about a single point create architectural waves

Upcoming Events

  • Design Smarter: Leveraging GIS, BIM, and Open Data for Better Site Selection & Collaboration

    Live Webinar

    Register for Free
  • Slate Reimagined: The Surprising Advantages of Slate Rainscreen Cladding

    Webinar

    Register Now
  • The State of Residential Design Today: Innovations and Insights from RADA-Winning Architects

    Webinar

    Register for Free
All Events