La Seine Musicale

Project Details

Project Name
La Seine Musicale
Project Types
Project Scope
New Construction
Shared By
Ayda Ayoubi
Project Status
Built
Year Completed
2017
Size
392,800 ft²
Team

Project Description

FROM THE ARCHITECTS:

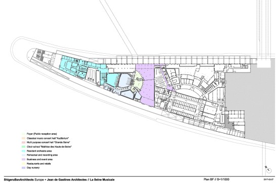
Shigeru Ban Architects is the winner of an international design competition, a new mixed-use cultural center slated for Seguin Island in Boulogne-Billancourt, France. The island, located in the Seine River, southwest of central Paris, was the site of Renault’s manufacturing plant from the 1930s until 2005. The 36,500-square-meter musical building, contains a multi-purpose concert hall with up to 6,000 seats, a classical music hall with 1,150 seats, rehearsal and recording rooms, practice facilities, restaurant, shop, spaces for orchestra musicians, and an outdoor park that forms an inviting entry sequence into the complex. The structure features a rounded transparent skin supported by a signature geometric reticulated wooden structure, creating a protected micro-climate filled with light. To maximize solar gain, rotating photovoltaic sail is automated to work with the rotation of the sun.

This text has been lightly edited for clarity.

Upcoming Events

  • Build-to-Rent Conference

    JW Marriott Phoenix Desert Ridge

    Register Now
  • Reimagining Sense of Place: Materiality, Spatial Form, and Connections to Nature

    Webinar

    Register for Free
  • Homes that Last: How Architects Are Designing a Resilient Future

    Webinar

    Register Now
All Events