La Brea Housing

Project Details

Project Name
La Brea Housing
Project Types
Multifamily
Project Status
Built
Year Completed
2013
Size
52,000 ft²
Team
principals: Patrick Tighe, FAIA, John V. Mutlow, FAIA
project architects: Evelina Sausina, Assoc. AIA, Alan Dana, Assoc. AIA
team: Chia-Min Wang, Andrea Urmanita, Michael Ho, Assoc. AIA, Albert Chavez, Kervin Lau, Assoc.AIA, Ted Digiralomo, Gelareh Arbab, Grant Nunnelee, Pepe Sanchez, Monica Mader, Barkev Daron

Project Description

At the intersection of Santa Monica Boulevard and La Brea Avenue, just
across the abrupt aesthetic jumpcut of a municipal border with Los
Angeles, West Hollywood’s unique architectural and urban design
standards are on full display. From the hectic plaza of a vertical
shopping mall on the corner, to the turquoise street lights, to the
colorful, sometimes garish, palettes of new 100-unit condo buildings,
the appearance of the public realm is carefully considered—if a bit
overwhelming.

Standing out from the noise is a new mixed-use affordable housing complex designed by local firms Patrick Tighe Architecture, based in Santa Monica, and John V. Mutlow Architects,
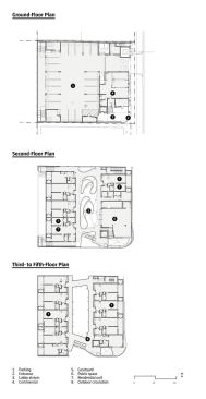
from Los Angeles. The parti is relatively simple: a 32-unit
courtyard-style apartment building with ground-floor commercial space.
Each of the studio, one-, and two-bedroom apartments has its own balcony
and courtyard-facing terrace. The streetside façade is clad with a
shield of laser-cut aluminum panels overlaying the recessed aquamarine
balconies, and its entry corner is wrapped with a series of striking,
large white bands that recall the imperfectly lain bandages of a cartoon
mummy.

Sited next to a fast food parking lot, the corner has the airspace to
burst into notice on the avenue, creating the “big move,” according to
principal Patrick Tighe, FAIA. “We wanted to celebrate that corner and
treat it almost like a fifth elevation,” he says. “The corner really
becomes an important element. It’s almost like a beacon of activity.”

In an example of unabashed computer-modeled architecture, the bands
demand notice on a street where every other building seems to be either
recently completed or under construction. “There isn’t much context
there. It’s all being developed,” Tighe says. And given that much of the
surrounding residential fabric is market rate, he says, “we were really
more interested in the building from the inside out and from the
perspective of the user.”

The facility opened earlier this year and houses formerly homeless LGBT
youth, people with disabilities, and people living with HIV/AIDS. The
nonprofit AIDS Project Los Angeles occupies the ground-floor commercial
space. Because Tighe wanted the building to function as a welcoming
environment, the design emphasizes the apartments’ private-but-open
terraces and balconies as well as common spaces, especially in the
courtyard.

Not just an L.A. archetype, the courtyard also serves an
environmentally functional role, mostly due to its north–south
alignment. “The fact that we can get air and light into the middle of
the building allows for each unit to have cross ventilation, creating a
microclimate within the building,” Tighe says.

The rooftop incorporates photovoltaics and a solar hot water system
that provides free, passively heated water to residents. The
temperature-regulating courtyard also helped the project meet West
Hollywood’s municipal green building standards. While they didn’t pursue
certification, Tighe says it would meet the equivalent of LEED Silver.

Developed by the nonprofit West Hollywood Community Housing Corp., the $8.3 million project was funded by the City of West Hollywood and the County of Los Angeles,
and also through low-income housing tax credits. “These are low-cost
projects, and we try to get as much design out of them as we can,” Tighe
says.

What helped was the cooperation between the architects and the city,
Tighe says. He and his team worked closely with West Hollywood’s urban
designers and planners, as well as its architectural review board and
other community groups to refine the project. “It was almost a
community-driven design,” he says. And the structure holds its own in
the visual static of a city with more than its share of things to see. —Nate Berg

Upcoming Events

  • Design Smarter: Leveraging GIS, BIM, and Open Data for Better Site Selection & Collaboration

    Live Webinar

    Register for Free
  • Slate Reimagined: The Surprising Advantages of Slate Rainscreen Cladding

    Webinar

    Register Now
  • The State of Residential Design Today: Innovations and Insights from RADA-Winning Architects

    Webinar

    Register for Free
All Events