Konaki Averof Cultural Centre

Project Details

Project Name
Konaki Averof Cultural Centre
Location
Larissa, Greece
Project Types
Cultural
Shared By
Morgan Day
Project Status
Concept Proposal
Size
12,900 ft²

Project Description

FROM GEORGE BATZIOS ARCHITECTS:

Our proposal suggests the regeneration of the site, not only the artifact, which was the Konaki Averof historical building, in a modern constructional and cultural context.The apparent panel of compressed straw, proposes a reconnection with the history of the place of the 19th century. Its exceptional thermal insulation abilities are able to reduce up to 95% the air conditioning needs of the building. This energy efficiency of the new building classifies it in the category of passive house buildings.

The proposed architecture of the new Cultural Centre "Konaki Averof" concerns the effort of the continuous coexistence between the history of a place and the functional and sustainable specifications of a contemporary building. This coexistence depicted on a building material which can be a trigger for the productive reconstruction of Thessaly plain that is essential to the rural population of the region

The Konaki Averof historical building , is the most important of the scattered huts that characterize the period of the large land ownership in the late 19th century, composing the birth of a cultural dot, an architectural artifact in between the golden Thessalian environment. The place of Konaki Averof was a set of solid things, had shape, color and texture. The shape was formed by the architecture in relation with the surrounding golden environment

The combination of these two elements (architecture, Thessalian agricultural land) create a site with unique properties in accordance with the cultural and environmental conditions. A mirror of this important historical era. Both of these elements as well as the cultural and environmental conditions in which interacted is equally important in the regeneration of the historicity of the place. In other words, the historical value of Konaki Averof is not only based on the architectural form but it is also based on the natural environment that surrounded it.. A renovation/restoration of the building architecture in its original state would not be sufficient to bring the unique historical place of Konaki Averof since the suburban development of Larissa city has already removed the physical element of the Thessalian land and the passage of time has removed the atmosphere of the rural life of the time. The urban development and the passage of time have removed its color and texture.

The apparent straw are a contemporary construction technique developed in northern Europe and its based on the physical properties and the ecological character of the agricultural material, said derivative of the Thessalian land: wheat. This material will overlay the whole of the building facades with total respect to the volumetric and the preservation of existing architectural envelope components. Apart from its application as the basic material of the facades , the compressed straw its also applied to the the building equipment and to the surroundings. The visitors can wander, sit, have lunch or even lie down on golden straw bales in a modern and safe architectural framework.

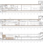
The main areas of the building contained two basic levels. The ground floor and the level of the attic. The ground floor contains rationally organized all the basic functions of the building clearly separating the four modules of the program. The level of the attic on the other hand, provides a great degree of freedom in a public open space in which visitors interact with the users of different programming modules of the building. The grounds rationalism provides the necessary functionality of the building and the attic becomes a social "playground".

Upcoming Events

  • Slate Reimagined: The Surprising Advantages of Slate Rainscreen Cladding

    Webinar

    Register Now
  • The State of Residential Design Today: Innovations and Insights from RADA-Winning Architects

    Webinar

    Register for Free
  • Specifying Smarter with Copper-Clad Aluminum (CCA) Metal-Clad Cable

    Webinar

    Register for Free
All Events