Kolon One & Only Tower

Project Details

Project Name
Kolon One & Only Tower
Location
SeoulSouth Korea
Project Types
Project Scope
New Construction
Shared By
katie_gerfen
Project Status
Built

Project Description

Morphosis crafted a layered façade-shading strategy for a new research and development hub, using the client’s own products.

At over 820,000 square feet, the Kolon One & Only Tower is more than just a centerpiece of a new high-tech hub outside Seoul. Designed by Morphosis for Kolon Industries, one of South Korea’s largest manufacturers, the research-and-development facility is also a showcase for using high-performance fabrics in architecture—in this case, fabrics made by Kolon itself.

While Kolon produces a wide variety of products, it is perhaps best known for cutting-edge textiles that go into everything from sports gear to automobiles. “The airbag in your car probably comes from them,” says Morphosis founding principal Thom Mayne, FAIA. So when the client asked for a design that brought in maximum sunlight while reducing solar gain, it didn’t take long for both sides to realize that the solution was already in hand.

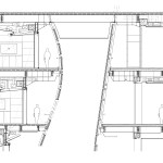
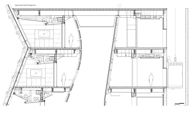
The building is split between back-office research wings—which make up 85 percent of the floor plan—and the public-facing atrium, which connects the research wings and acts as the building’s front door. By creating 400 diamond-shaped liner panels using 8-meter-long swatches of Kolon fabrics in varying degrees of thickness and opacity, and placing them in vertical layers through the 30-meter-tall atrium, Morphosis was able to shade and diffuse the strong western sunlight, add light as needed with embedded LEDs, and help control acoustics in the cavernous space. The “stretchers,” as the firm calls the fabric pieces, can also be swapped out, making them a rotating product showcase as well as a shading system.

The project uses 10 different Kolon fabrics, both inside and outside the building. The exterior was a particular challenge. Morphosis employed a brise-soleil system of exterior polymer panels that work with the stretchers inside in a tiered shading strategy—akin to the layers in the high-performance sportswear that often uses Kolon’s products. “We treated the façade as a jacket,” says principal Eui-Sung Yi.

But this part of South Korea has high winds and dramatic annual temperature swings, and the client insisted that the brise-soleil panels have as few connection points as possible, so as not to mar the view. “One of the client’s mandates was for the panels to look as good from the inside as they did from the outside,” Yi says.

The solution was aramid, a material that has five times the tensile strength of iron. Kolon uses it in applications such as bulletproof helmets. Used as an added layer in the composite mix to strengthen the glass fiber-reinforced polymer, it allowed the architects to achieve a graceful organic form with minimal connections to the building. “With aramid,” Mayne says, “we were free to develop our own language that wasn’t limited to the shape of the material.”

Project Credits
Project: Kolon One & Only Tower, Seoul, South Korea
Client: Kolon Industries
Design Architect: Morphosis, Los Angeles . Thom Mayne, FAIA (design director); Eui-Sung Yi (project principal); Sung Lim (project manager); Ji-Young Jon, Sung-Soo Lim, Zach Pauls, Aaron Ragan (project architects); Natalia Traverso Caruana, Daniel Pruske (project designers); Ilaria Campi, Yoon Her, Meari Kim, Assoc. AIA, Sarah Kott, Assoc. AIA, Michelle Siu Lee, Jung Jae Park, Go-Woon Seo, Pablo Zunzunegui (project team); Cory Brugger, Assoc. AIA, Kerenza Harris, Stan Su, AIA, Atsushi Sugiuchi (advanced technology); Natalie Abbott, Viola Ago, Lily Bakhshi Sheppard, Paul Cambon, AIA, Jessica Chang, AIA, Tom Day, Kabalan Fares, Stuart Franks, Fredy Gomez, Marie Goodstein, Parham Hakimi, Maria Herrero, James Janke, Dongil Kim, OneJae Lee, Seo Joo Lee, Katie MacDonald, Assoc. AIA, Eric Meyer, Nicole Meyer, Elizabeth Miller, Carolyn Ng, Liana Nourafshan, Brian Richter, Ahmed Shokir, Ari Sogin, Colton Stevenson, Henry Svendsen, Derrick Whitmire, Jamie Z. Wu, Eda Yetim, Helena Yun (project assistants); Jasmine Park, Assoc. AIA Sam Tannenbaum (visualization)
Local Architect: Haeahn Architecture
Structural Engineer: Buro Happold Engineering; SSEN
M/E/P Engineer: Arup; HiMec; Nara
Sustainability/LEED: Arup Group; Transsolar; HiMec; Eco-Lead
Façade: Arup Group; FACO
Lighting: Horton Lees Brogden Lighting Design; Alto
Civil Engineer: ACE ALL
Fire: Arup Group; KF UBIS
BIM: Morphosis Architects; Gehry Technologies; DTCON
Landscape/Signage/Graphics: Morphosis Architects; Haeahn Architecture
Interiors: Morphosis Architects; Haeahn Architecture; Kidea
Audiovisual/IT/Security/Cost Estimator: Kolon
Code/Life Safety: Haeahn Architecture
Specifications: Morphosis Architects; Haeahn Architecture
Waterproofing: Haeahn Architecture
Construction Management/General Contractor: Kolon Global Corp.
Façade Construction: Korea Carbon (GFRP); Korea Tech-Wall (GFRC); Han Glass (curtainwall); Steel Life (interior liner)
Size: 76,300 gross square meters (821,286 gross square feet)
Cost: Withheld

Upcoming Events

  • Design Smarter: Leveraging GIS, BIM, and Open Data for Better Site Selection & Collaboration

    Live Webinar

    Register for Free
  • Slate Reimagined: The Surprising Advantages of Slate Rainscreen Cladding

    Webinar

    Register Now
  • The State of Residential Design Today: Innovations and Insights from RADA-Winning Architects

    Webinar

    Register for Free
All Events