Klotski

Project Details

Project Name
Klotski
Location
SeattleWA
Shared By
Graham Baba Architects
Project Status
Built
Year Completed
2018
Size
10,041 ft²

Project Description

The Klotski is a three-story, mixed-use infill building situated in the Ballard neighborhood of Seattle. Close to downtown, the area is noted for its dynamic mix of commercial, manufacturing, and residential uses. Reflecting the eclectic vibrancy and gritty nature of the neighborhood, the 10,041-square-foot CMU and steel-framed building houses a beer hall, an office, a maker space, a studio, and a small caretaker’s apartment.

Riffing on the idea of shifting uses and planes, the design takes its visual cue from a sliding tile puzzle, also known as a klotski, where the object is to rearrange tiles to solve the puzzle. The puzzle is expressed on the south-facing exterior of the building through the use of 7’x10’ perforated metal screens. The screens slide up and down, enabling users to change the screens position for sun shading and privacy, and in response to seasonal variations in daylight.

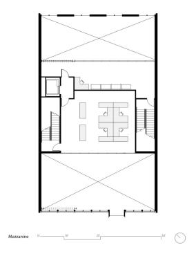
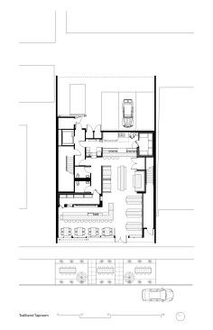
At street level, the building is set back from the property line by several feet to provide space for exterior dining; expansive glazing composed of wood/glass sliders and fixed units reveal the activity inside to the street. The building’s massing steps back at the top floor to create an outdoor deck for the studio and apartment. The glazed, second-story wall of windows features a steel-wrapped bay window that extends out over the sidewalk. Inside, the clear-spanning steel structure and brace frames are exposed, complementing concrete floors and wood decking. An open floor plan and seventeen-foot-high ceilings create a loft-like industrial aesthetic for the office housed within. Conceived as a maker space studio, a self-contained mezzanine accessed via stairwells and elevator floats within the second floor volume. A studio and caretaker’s unit occupy the top level. Generous roof decks and an interior courtyard round out the spaces, ensuring ample indoor-outdoor opportunities. On-site covered parking is accessed off the alley for retail customers and residents.

Sustainable features include rainwater cisterns that collect and recycle all on-site rainwater, roof-top solar panels, energy efficient radiant heating, thermally efficient, operable windows on the north and south sides of the building to encouraging cross ventilation, and operable sunshades on the exterior. The modest size of the lot— 4,300-square-feet—meant that every square inch of space of was organized as efficiently as possible in order to maximize usable/leasable areas.
 
Areas
Total building area: 10,041 SF
Ground Floor: 2,440 SF
2nd Floor: 3,747 SF
Mezzanine: 1,753 SF
3rd Floor Studio: 2,101 SF
Lot Area: 4301 SF

Graham Baba Architects design team
Jim Graham, design principal
Susan Tillack, project manager & architect
Andy Brown, architectural staff
 
Project team
Owner/Developer: David Milesi
Architect: Graham Baba Architects
Structural Engineer: Harriott Valentine Engineers, Inc.
Civil Engineer: Sitewise Design
Geotechnical Engineers: Geotech Consultants Inc.
General Contractor: Dovetail General Contractors 

Upcoming Events

  • Design Smarter: Leveraging GIS, BIM, and Open Data for Better Site Selection & Collaboration

    Live Webinar

    Register for Free
  • Slate Reimagined: The Surprising Advantages of Slate Rainscreen Cladding

    Webinar

    Register Now
  • The State of Residential Design Today: Innovations and Insights from RADA-Winning Architects

    Webinar

    Register for Free
All Events