Kitchen ‘Hub’

Project Details

Project Name
Kitchen ‘Hub’
Location
WashingtonDC
Project Types
Project Scope
Renovation/Remodel
Shared By
dmadsen
Project Status
Built
Size
3,475 ft²

Project Description

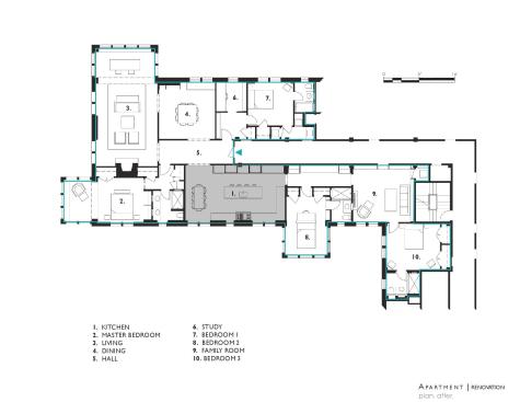
This project presents the classic challenge of combining two existing apartment suites and making them work together as one, large apartment. The kitchen plays an important role in the new layout, unifying the previously dispersed spaces of the individual units. It serves as a generous ‘hub’; accommodating multiple cooks and casual eating, while maintaining easy circulation throughout. This space becomes the communal destination for the family.

Carefully located interior openings provide cross axial views between the new kitchen and the other common spaces, while allowing for shared natural light in all directions. The apartment not only has natural light (and views) from three different orientations, but is further enhanced by a new 10’-6” ceiling height, reclaiming a foot and a half of previously concealed plenum space in this top floor unit.

Upcoming Events

  • Design Smarter: Leveraging GIS, BIM, and Open Data for Better Site Selection & Collaboration

    Live Webinar

    Register for Free
  • Slate Reimagined: The Surprising Advantages of Slate Rainscreen Cladding

    Webinar

    Register Now
  • The State of Residential Design Today: Innovations and Insights from RADA-Winning Architects

    Webinar

    Register for Free
All Events