Khazar Hyper Center

Project Details

Project Name
Khazar Hyper Center
Location
MazandaranIRAN
Shared By
Mostafa Shahbazian
Project Status
On the Boards/In Progress

Project Description

Mazandaran province is ranked the first touristic city in Iran. Therefore, creating tourist attractions is one of the main policies of this region. In this regard, the construction of commercial-tourist-recreational projects plays an important role.
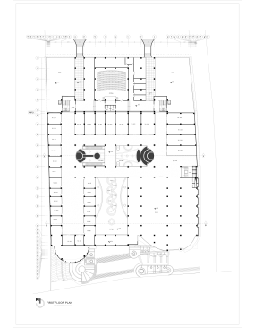
The Khazar recreational complex with an area of 35,000 square meters in four levels, is located in the coastline of the Caspian Sea.
This complex is part of a larger project that will be constructed in 3 phases.
Currently, its first phase, which includes hyper market, shops, restaurants, coffee shop, musical fountain, playground, traditional restaurant, bank, currency exchange facility, conference hall, cinema and office units, has already been constructed. Other sections of the project are still undergoing.
Being on the seafront is one of the strengths of the project. This also has a significant impact on building design. It is also attractive for users. For this purpose, The form of this building is designed after field research according to the choice of people based on soft lines consistent with their visual structure according to the ecological video theory.
The implementation of the first phase of the project received a good feedback from the users.
Attention to landscape, climate, the benefits of light and wind, accessibility, and other factors influencing the design of this project has been considered.
Due to climate, economic and better performance against fire, the structure of building has been chosen as a type of reinforced concrete.

Upcoming Events

  • Design Smarter: Leveraging GIS, BIM, and Open Data for Better Site Selection & Collaboration

    Live Webinar

    Register for Free
  • Slate Reimagined: The Surprising Advantages of Slate Rainscreen Cladding

    Webinar

    Register Now
  • The State of Residential Design Today: Innovations and Insights from RADA-Winning Architects

    Webinar

    Register for Free
All Events