Kenwood Revival

Project Details

Project Name
Kenwood Revival
Location
MinneapolisMN
Project Types
Project Scope
Renovation/Remodel
Shared By
dmadsen
Project Status
Built
Size
3,670 ft²

Project Description

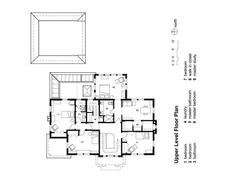
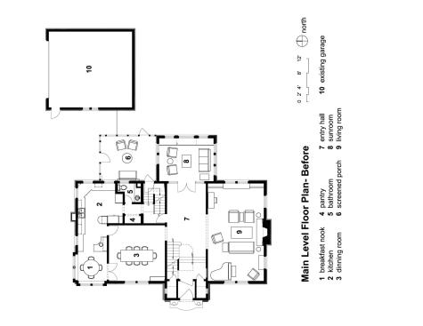
This 1918 Georgian Revival has a stately front façade, grand center hall and gracious living spaces, but a back hall maze made it cumbersome to get to the garage and out to the back yard. A galley kitchen, remodeled in the 1980’s, was disproportionately sized for the house and for its central role in daily life, and did not connect to the spirit of the old house. The homeowners decided to reorganize underused space rather than add on.
One half of the main floor was gutted and reorganized. Moving a powder room, back hall and second staircase made room for a proper kitchen and mudroom. The new kitchen wraps the corner around a center island while maintaining existing windows in brick openings. Understated yet refined finishes and details imbue timeless quality, successfully disguising the recent vintage of the project. Floor to ceiling glass tile walls and custom metal cabinet valences, shelves, range hood and island legs add an industrial edge to the traditional cabinetry and millwork. Connection to the newly renovated dining room was improved, and a much loved eating nook kept its place but got some new tricks. New cabinetry holding books, art supplies and computers create a gateway to the space, and integrated pull down maps are handy to illuminate breakfast conversations about current events or upcoming vacations. A marble sill at the kitchen window becomes a ledge in the new screened porch for plates and glasses to perch on the way in or out. The hipped roof at the porch is a glass and steel conservatory system, maximizing light in the kitchen and improving the visual connection to the back yard. A new mudroom with a custom steel skylight connects the kitchen to the porch and back yard and provides this family of five a sunny space to kick off their gear on the way in to the house.

Upcoming Events

  • Design Smarter: Leveraging GIS, BIM, and Open Data for Better Site Selection & Collaboration

    Live Webinar

    Register for Free
  • Slate Reimagined: The Surprising Advantages of Slate Rainscreen Cladding

    Webinar

    Register Now
  • The State of Residential Design Today: Innovations and Insights from RADA-Winning Architects

    Webinar

    Register for Free
All Events