Kensett

Project Details

Project Name
Kensett
Location
DarienCT
Architect
Sun Homes
Project Types
Multifamily
Shared By
dmadsen
Project Status
Built
Size
3,203 ft²

Project Description

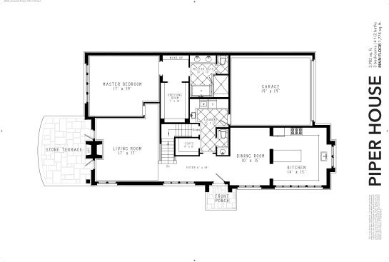
The Piper is a master-down plan within an age-targeted community. To our surprise, our master-up plans have outsold out master-down plans because of the additional living space afforded once the master suite is moved upstairs. However, those that prefer the Piper do so with a cult-like devotion. Our sales managers report that it’s the formal separation of kitchen, living and dining rooms that satisfies those in the market who prefer more formal, European formality of separate rooms.

The Piper kitchen was modelled after the scullery in an Elizabethan manor house I worked in as a summer student many years ago. The 14 foot ceilings allow a tall bay and a band of high windows that create an atmosphere of light and sky through the room, showing up the double stack of upper cabinets on one wall. Along another wall, we used conventional 36″ upper cabinets as base cabinets under the high band of clerestory windows, giving a slender and more elegant profile than conventional deeper ones.

The dining room, though separate from the kitchen and formal, is immediately adjacent, accessible through two portal openings that are thickened up to 12 inches deep, to reinforce the feeling of being in a larger home of substance.

The living room has an all Thassos marble surround, and is flanked on both sides by single french doors, for an almost cuckoo clock passage onto the patio, which has an outdoor gas fireplace back-to-back with the living room fireplace.

The entry foyer has a simple flatstock paneling detail, white on white, which contrasts beautifully with the glossy black window sashes throughout the main floor.

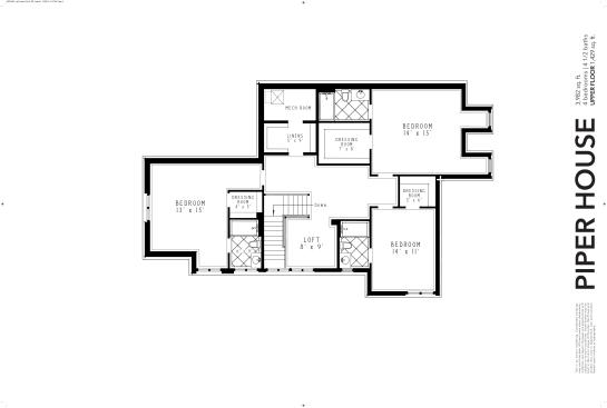
At the landing upstairs is an open home office loft; the rooflines are such that the dormer windows inside yield a 6 foot head height, and when sitting at the home office loft this lower horizontal band of windows creates a cottage-like atmosphere and a great spot to take in fresh air while working at one’s desk.

Architecturally we’re very pleased with the one and a half story rooflines, with dormers hugging the mass down and bringing the exterior architecture inside in the form of coved ceilings and lower window head heights on the second floor. The exterior detailing is home cooking, with simple flatstock sills and caps, common red brick chimneys and simple window mullion patterns. Other than the brick chimneys, the masonry is all horizontal, with red brick driveways and flagstone paths and patios.

The Piper (and all the homes at Kensett) are designed as stand-alone homes, then married together at the party wall into 2-plexes. This allows for a distinct identity for each home, and the ability to step more easily with the site’s topography. It also creates an easy, informal rhythm of roofs, dormers and chimneypots.

Upcoming Events

  • Design Smarter: Leveraging GIS, BIM, and Open Data for Better Site Selection & Collaboration

    Live Webinar

    Register for Free
  • Slate Reimagined: The Surprising Advantages of Slate Rainscreen Cladding

    Webinar

    Register Now
  • The State of Residential Design Today: Innovations and Insights from RADA-Winning Architects

    Webinar

    Register for Free
All Events