Kelardasht Villa

Project Details

Project Name
Kelardasht Villa
Location
N.12, Anahita St, Akhgari St, Fereshte St, ValiAsr St, ParkwayTehranIRAN0098
Architect
MADO ARCHITECTS
Project Types
Single Family
Shared By
MADO
Project Status
Built
Year Completed
2018
Style
Modern
Team
Architect: Mado Architects

Project Description

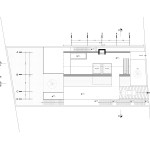
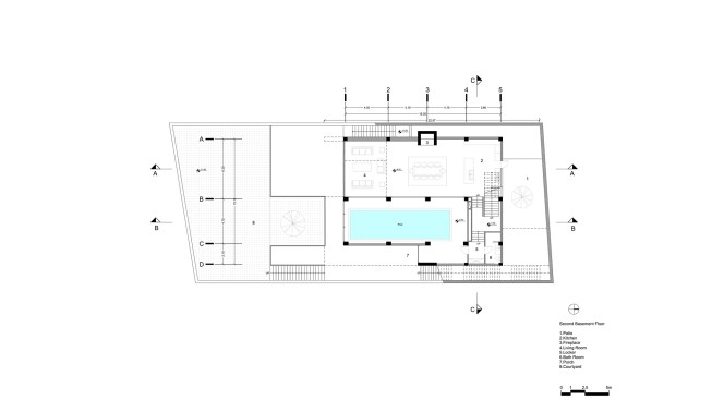
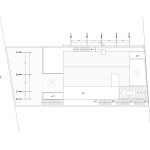
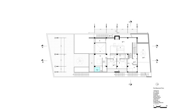
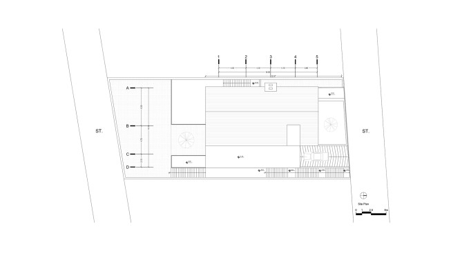
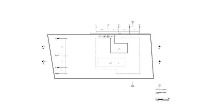
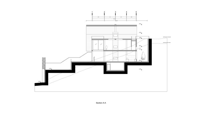
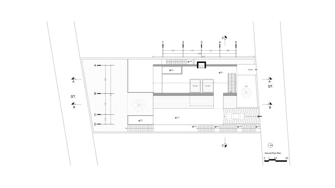
Designed in a sharply inclined hillside in Kelardasht, a village in the north of Iran. One of the primary client’s demands was the privacy issue, and due to the way the neighbors built, we decided to put the building on the upper part of the plot to preserve villa from surrounding predomination. this also provides more sustainable condition and reduces the cost of building.

After that we justified the roof with the street level and you enter the villa from the roof. other design elements like the sloping roof and the chimney added in an abstract way in order not to interfere in the landscape, celebrate privacy, provide unique views from inside and also being generous and humble to the environment.

Head Architect : Maziar Dolatabadi

Lead Architect : Moein Nikaeen

Architect In Charge : Pourya Alighardashi

Detail Design : Deniz Ebrahimi Azar

3D Design & Rendering : Saeid Yousefvand

Visualiser : Tina Shahnazari

Drawing : Soroush Ketabi

Model : Amirbahador Mirhoseini

Sarah Soleymani

Upcoming Events

  • Design Smarter: Leveraging GIS, BIM, and Open Data for Better Site Selection & Collaboration

    Live Webinar

    Register for Free
  • Slate Reimagined: The Surprising Advantages of Slate Rainscreen Cladding

    Webinar

    Register Now
  • The State of Residential Design Today: Innovations and Insights from RADA-Winning Architects

    Webinar

    Register for Free
All Events