KATARA STUDIOS – WSDG INTERNATIONAL COLLABORATION FOR WORLD-CLASS MIDDLE EASTERN RECORDING COMPLEX

Project Details

Project Name
KATARA STUDIOS – WSDG INTERNATIONAL COLLABORATION FOR WORLD-CLASS MIDDLE EASTERN RECORDING COMPLEX
Location
DohaQATAR
Project Scope
New Construction
Shared By
HShermanPR
Project Status
Built
Year Completed
2015
Style
Traditional
Size
65,000 ft²
Team
Architect/Acoustician: John Storyk
Project Manager: Joshua Morris
Interior Designer: Beth Walters
Art Director: Silvia Molho
Acoustic Consultant: Renato Cipriano
Acoustic Consultant: Dirk Noy
Acoustic Consultant: Gabriel Hauser
Thomas Wenger: Thomas Wenger

Project Description

DOHA, QATAR: Doha, the capitol and principal city of Qatar, has welcomed the completion of Katara Studios, one of the Middle East’s largest and most technically advanced recording/feature film audio post production complexes. Created by internationally recognized facility design leaders, the 65,000 sq. ft. / 6,000 sq. m. compound, was commissioned by The Katara Committee, WSDG-Walters-Storyk Design Group, Co-Principal, Sergio Molho, reports the project dates back to 2012, when WSDG was retained by Elie Wakim, head of the acoustical division of leading Doha-based, Imar Trading & Contracting.

“The new building, developed by London-based ADG, had just been completed in Doha’s Middle Eastern Art Development Center,” Molho explains. “Metropolis, a major London recording studio, had developed the extensive technology package, and was engaged to coordinate the system integration. The project required high-level studio and interior design, as well as a commensurate HVAC system and, expert construction oversight to monitor the complex sound isolation issues essential to critical recording and listening environments. WSDG’s international organization was ideally positioned to deliver all of these services,” Molho adds.

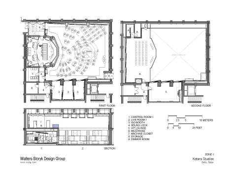
The sprawling, 40+ room complex is distinguished by the 3000+ sq. ft. / 225 sq. m. Studio 1 Live (orchestral) Room, crowned by a towering 30’ / 9m-high ceiling, and capable of hosting 80+ musicians. A recording suite with superlative acoustics, Katara Studio 1 features a 729 sq. ft. / 68 sq. m. control room, with a 96 fader Neve 88RS Console and 5.1 PCM BB5 surround sound system three spacious, multi-configurable, ISO Booths; an 1158 sq. ft. / 108 sq. m. Mezzanine and a 582 sq. ft. / 54 sq. m. VIP Lounge, designed to facilitate recording of indigenous and/or jazz sessions. The facility also encompasses a 546 sq. ft. / 50.76 sq. m. Studio 2 Live (rock ‘n’ roll) Room and a 435 sq. ft. / 40 sq. m. CR outfitted with an 80 channel API Vision Console. Each studio has a dedicated machine room to reduce cable lengths, and each is designed to accommodate an eclectic range of clients and recording styles.

“We were fortunate to have the opportunity to collaborate with Elie Wakim (Imar Trading & Contracting) and Metropolis on this complex project,” Sergio Molho said. “Our joint effort enabled the project to be completed well within its projected ten month construction deadline.”

“This extraordinary facility required an extremely complex acoustic program,” reveals WSDG Project Manager, Joshua Morris. “The business plan was to provide Middle Eastern artists with a superb alternative to European studios and, simultaneously establish Doha as an appealing destination for international recording artists. To achieve this mandate, every effort was made to insure that each Katara Studio component met the most stringent pro audio requirements.

“In addition to three recording studios, a sophisticated 583 sq. ft. / 54+ sq. m. Mastering Suite, a 692 sq. ft. / 64+ sq. m. Dolby Atmos, Post-Production suite (with VO Booth) for feature film mixing,” Morris said. “Two spacious Composer Rooms, three Audio Prep Rooms; a 518 sq. ft / 48 sq. m Video Grading Suite and, a 228 sq. ft. / 22 sq. m Video Edit Suite, all coalesce to provide clients with virtually every requirement for writing, tracking, mixing and mastering at the highest level of performance,” he adds.

Aesthetics were a critical element of the studio plan. Elie Wakim and Katara Studios management were committed to incorporating authentic Arabic design elements throughout the complex. WSDG Co-Founder/Interior Designer, Beth Walters, and Partner/Art Director, Silvia Molho performed extensive research on Islamic and Muslim graphic arts and architecture. Studying the vibrant Arabic color palette, they developed methods to incorporate elements of intricately patterned Islamic calligraphy and mosaics, throughout the complex. Walls, floors, ceilings, and virtually every surface area represented a potential canvas. The key to the success of their interior design model was to creatively weave these classic elements within the ultra modern facility in a completely organic fashion.

To complete the fine-tuning process of the control and live rooms, WSDG Brazil Partner/GM, Renato Cipriano, WSDG Europe, Partner/GM Dirk Noy, and the entire international group including Project Engineers, Gabriel Hauser and Thomas Wenger, collaborated on low frequency design, and comprehensive acoustic analysis and prediction. Additionally, Silvia Molho envisioned a series of innovative “Magic Ceiling Cubes,” to serve as membranic, low frequency absorbers, and to provide mood lighting for Studio 1. Ms. Molho worked closely with WSDG Spain, Project Engineer, Marc Viadu to identify fabricators for these handsome, custom-built ceiling clouds. Their value as highly effective, solutions for enhancing the live room’s acoustics was readily apparent by the final commissioning tests.

WSDG Co-Founder, John Storyk points to Katara Studios as one of the high points in the firm’s 45+-year history. “Elements of this complex are genuinely unique,” Storyk says. “In addition to the ingenious Magic Ceiling Cubes, the Studio 1 Live Room’s three oversized ISO Booths can be re-configured in a variety of permutations. They can serve as independent spaces, as one large and one small ISO, as a single large ISO or, as an extension of the Live Room, as a variable acoustic element to increase its volume and reverberation time. Additionally, their large pocketing, acoustic sliding glass doors provide complete visual contact between all three ISO Booths and the Live Room.

“Ultimately,” Storyk concludes, “the success of this massive project is a testament to the communication skills, and consummate professionalism of Elie Wakim, Imar Trading & Contracting, Metropolis and the entire global WSDG team. We are all extremely pleased to be associated with this significant addition to the Middle East’s audio/video production/post-production landscape.”

1. Katara Studios Control Room 1
2. Katara Studios Control Room 2
3. Katara Studios Live Room
4. Katara Studios Live Room Balcony
5. Katara Studios Sound Locks ext.
6. Katara Studios Mastering room
7. Katara Studios Presentation Drawings

###

WSDG-Walters-Storyk Design Group has designed over 3500 media facilities worldwide. Credits include Jimi Hendrix’s Electric Lady Studios (1969); NYC’s Jazz At Lincoln Center and Le Poisson Rouge; broadcast facilities for The Food Network, ESPN, and WNET; major education complexes for NYU and Berklee College of Music, Boston (2015 TEC winner) and Valencia, Spain; and media rooms for such corporate clients as Hoffman La Roche. Recent projects include NYC’s Jungle City Studios and private studios for Green Day, Jay-Z, Timbaland’s Tim Mosley, film composers Carter Burwell and A.R. Rahman, Aerosmith, Bruce Springsteen and Alicia Keys. WSDG principals John Storyk), Beth Walters, Sergio Molho, Renato Cipriano, Dirk Noy and Silvia Molho lecture frequently at universities and industry events, and contribute regularly to industry publications. WSDG has collaborated with such noted architects as Frank Gehry, Norman Foster, Oscar Niemeyer, Phillipe Stark and Nicholas Grimshaw. WSDG is a nine-time winner of the prestigious NAMM TEC Award for outstanding achievement in Acoustics/Facility Design. The firm maintains offices in NY, SF, LA, Miami, Buenos Aires, Belo Horizonte, Basel, Barcelona, Beijing, Guangzhou, Florence, Mexico City, and St. Petersburg.

Upcoming Events

  • Design Smarter: Leveraging GIS, BIM, and Open Data for Better Site Selection & Collaboration

    Live Webinar

    Register for Free
  • Slate Reimagined: The Surprising Advantages of Slate Rainscreen Cladding

    Webinar

    Register Now
  • The State of Residential Design Today: Innovations and Insights from RADA-Winning Architects

    Webinar

    Register for Free
All Events