Just Be Apartments

Project Details

Project Name
Just Be Apartments
Architect
Arqmov Workshop
Project Types
Multifamily
Project Scope
New Construction
Shared By
angcook21
Project Status
Built

Project Description

FROM THE ARCHITECTS:

Ciudad de México, Mexico, 2016-01-18 –Just BE is an apartment building located in Colonia Condesa, a neighbourhood renowned for its social and commercial activity as well as its nightlife. The building sits on the same street as the Fondo de Cultura (Cultural Fund) and the old Bella Época cinema theatre, a 1940’s building with a 20-meter high tower that is an icon in the area.

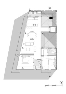
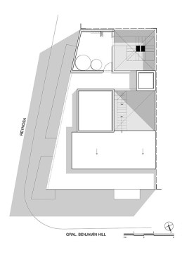
Arqmov approached this commission by first considering some particular characteristics of the site, especially its location on the corner of two streets with different energies and different impacts both for residents and the casual passer-by. Benjamin Hill Avenue is an important circulation artery for cars, bicycles and pedestrians, as well as being an access way to and from the neighbourhood; it is also used occasionally for a local tradition – the market on wheels. In contrast, the Calle Reynosa is a very narrow street that only serves as residential access.

Given these conditions two distinct fronts were proposed: on Benjamin Hill Avenue a front that is partially screened by a wooden lattice, and towards Calle Reynosa a front that is open to the street through long balconies and a full height glass curtain wall. Arqmov considered the social life and urban activity of the area as vital elements that serve to integrate the building into its context.

As a reference for the design, Arqmov have recalled a particular object that relates to street life in the area: a box made of wooden slats often used to carry vegetables, known in Mexico as ‘huacal’. This element suggests enclosure and isolation and, at the same time, the openness and movement characteristic of a market on wheels.

The design brief required a minimum open area, which Arqmov solved by means of two voids with clearly defined functions: one that hosts the secondary access by means of vertical circulation (an open staircase) and supplies air flow, and another void that creates views towards the Culture Fund and, at the same time, generates cross-ventilation to the interior of each apartment and allows natural light from all directions. Internal balconies were added towards this inner void.

The building floats over a basement level that houses the carpark. At the street corner, a small public space was created with an informal seating arrangement made up of wooden cubes against a red tiled wall which lights up at night, creating a welcoming meeting place for the public. It is interesting to watch passers-by, whether on foot, by car or bike, interact with this space and with the active context surrounding it. The building responds well to the constant dynamics of the cultural, commercial and entertainment area that is Colonia Condesa.

Upcoming Events

  • Design Smarter: Leveraging GIS, BIM, and Open Data for Better Site Selection & Collaboration

    Live Webinar

    Register for Free
  • Slate Reimagined: The Surprising Advantages of Slate Rainscreen Cladding

    Webinar

    Register Now
  • The State of Residential Design Today: Innovations and Insights from RADA-Winning Architects

    Webinar

    Register for Free
All Events