Junction 9

Project Details

Project Name
Junction 9
Location
919 9th Avenue CalgaryABCANADAT2G 0S5
Project Types
Project Scope
Renovation/Remodel
Shared By
MODA
Project Status
Built
Year Completed
2014
Style
Modern
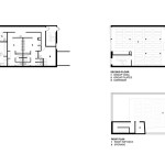
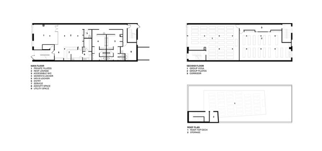
Size
10,000 ft²
Team
Architect: Dustin Couzens
Architect: Ben Klumper
Room or Space
Outdoor

Project Description

Junction 9 Yoga & Pilates

MoDA was approached in 2013 to reimagine an existing 10,000 sq. ft. two storey building in the historic Calgary neighborhood of Inglewood. Aside from the main feature of the expressive exterior screen, the project also involved a complete gut and renovation of the interior, the addition of a new exit stairwell, enlarging the existing windows and front entry, extending a stair to the roof, and bringing the building up to current life safety and code standards.
At the outset, we were challenged by our clients to design a building that not only communicated their brand, but also playfully interacted with the broader community. One of the initial constraints we needed to consider was reanimating the front façade of a building made of concrete and wedged tightly up against the front property line. This reality removed the possibility of pushing or pulling the front façade. Added to this was an extremely restrictive budget and an outdated Area Redevelopment Plan (ARP) that leaned heavily towards the retention of heritage and traditional design elements.
Working within the limits of these constraints, we developed a screen comprised of vertical fins made from 100 year old fir reclaimed from an abandoned Alberta granary. The screen was designed within the narrow parameters of ‘building signage’ and satisfied the ARP through its use of natural material. Another serendipitous outcome of using the 100-year-old fir was its dimensional stability given that the wood had acclimated to the weather in Alberta, drastically reducing its tendency to warp or crack.
We challenged ourselves to design the screen such that it was performative and multivalent in its function rather than merely a tack on. We employed the derivative techniques associated with parametric design as a direct response to our desire to capture a sense of movement. A topographic relief of varying depths was applied to the vertical fins, creating alternating fields of opacity and transparency when viewed from different angles, putting the screen in a constant state of flux. This ‘effect’ facilitates a dialogue between the street and the users of the building. In addition to its sculptural and temporal qualities, the screen performs in the following ways:
Branding & Signage: Through parametrically applying a topographic relief to the vertical fins, the screen echoes not only the fluidity of movement happening within the building, but also projects back onto the city the energy and exuberance of Junction 9. The urban scale of the screen also reanimates conventional building signage into a grand gesture that addresses the prosaic nature of the 9th Avenue corridor, perhaps becoming a catalyst for change in a gentrifying community.
Wayfinding: The screen morphs from vertical to horizontal above the front entry, forming a soffit condition that enters the building, leading one from the street up into the studio space.
View Attenuation: Given that the building looks out onto a relatively banal tract of 9th Avenue, from the interior the screen captures ‘snapshot-like’ instances of the traffic and street life, perhaps creating spectacle where before there was none.

Upcoming Events

  • Design Smarter: Leveraging GIS, BIM, and Open Data for Better Site Selection & Collaboration

    Live Webinar

    Register for Free
  • Slate Reimagined: The Surprising Advantages of Slate Rainscreen Cladding

    Webinar

    Register Now
  • The State of Residential Design Today: Innovations and Insights from RADA-Winning Architects

    Webinar

    Register for Free
All Events