John H. Daniels Faculty of Architecture

Project Details

Project Name
John H. Daniels Faculty of Architecture
Location
TorontoONCanada
Architect
Office dA
Project Types
Education
Shared By
Xululabs
Project Status
On the Boards/In Progress
Size
92,355 ft²

Project Description

What If You Actually Could Teach an Old Building Some New Tricks?
John H. Daniels Faculty of Architecture, Landscape, and Design / Office dA with Adamson Associates Architects

Site
A 1909 masonry building, designed by Burke, Horwood & White, on the University of Toronto campus.

Program
A new skin that reconfigures the building entry sequence and new spaces added onto and within the original building.

Solution
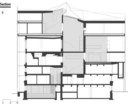
The building that houses the university’s architecture school sits on a corner site at the edge of campus, but it doesn’t engage with the streetscape effectively. Office dA (with architect of record Adamson Associates Architects) solved this problem with a skin of glass panels that reorients the entry sequence to the corner of two major streets, giving the building more prominence on both. At the entry point, the skin lifts to reveal the original building, and a combined stairway and ramp that snakes to the original main entrance. The double-skin system has insulated glass units that are engineered to optimize thermal performance.

Behind the new façade is an addition to the existing five-story building that adds another two stories of studio and library space. “It maximizes the density by building up. It’s a good solution,” juror Stan Allen said. Skylights installed in a green roof let ample daylight into the core, and a series of double-height flexible spaces are added onto and retrofitted into the original building. Usable for critiques and lectures and as lounges, these spaces also provide staircases, allowing for increased social interaction between staff and students, creating a greater sense of community than the existing building allows.

Upcoming Events

  • Build-to-Rent Conference

    JW Marriott Phoenix Desert Ridge

    Register Now
  • Reimagining Sense of Place: Materiality, Spatial Form, and Connections to Nature

    Webinar

    Register for Free
  • Homes that Last: How Architects Are Designing a Resilient Future

    Webinar

    Register Now
All Events