Project Description
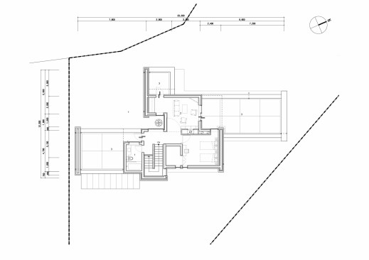
Jipyeong P House is constructed within 1/10 of a 1,000 ㎡ site while the remaining areas is fully landscaped. South Korea’s distinct Four Seasons can be experienced by the various plant species placed within the landscape to provide a comfortable and relaxing house as an escape from the busy life. The Client is a couple who runs a busy hospital during the weekdays and was in need of a comfortable get-away place during the weekend with no other concerns. Accordingly, the Architect composed each space within the approximate 200 ㎡ house based on the client’s needs.
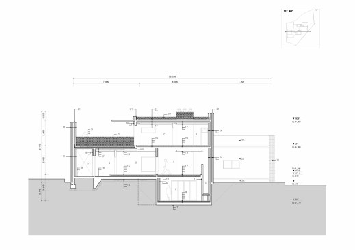
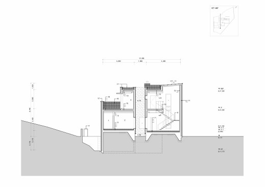
The house can be approached in various ways. The Client could directly enter the house by a ramp or pass the ramp to enter from the rear garden. A Sunken court was located at the rear garden to connect with the workshop which is associated with various peoples. It was a design for the clients to directly feel the nature from the lower ground level. Also, since the client did not want the interior of the house to be seen from the outside, all opening sizes besides the entry facing the adjacent roads were scaled down.
The window facing the rear garden was designed to be large so the client can enjoy the garden from the inside. Overall, though the sizes of windows facing the adjacent roads were reduced, these windows which are invisible from the outside provide brilliant light into the interior of the house and acts as a light chimney. Providing natural sunlight and ventilation was possible by placing windows throughout the house. A small Tea Room was designed for the Clients to enjoy the nature regardless of season. By placing the Tea Room, exterior wooden patio and the pond within a straight line, a sensuous place was formed.
Though its rough, an antique but modern, simplified facade has been accomplished by using gray clay bricks. And for the client’s comfort, the interior was finished with hardwood floors. The exterior is simple but embraces the complicated stories to be undiscovered from the interior so the Clients would like to live in this house.Written by Joon H.Park