Jenkins and Nanovic Halls

Project Details

Project Name
Jenkins and Nanovic Halls
Location
Notre DameIN
Architect
HBRA Architects
Project Types
Education
Project Scope
New Construction
Shared By
Miabelle Salzano
Project Status
Built
Year Completed
2017
Size
185,276 ft²

Project Description

FROM THE ARCHITECTS:

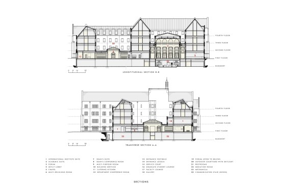
A pair of new conjoined buildings that together comprise an integrated ensemble for the Social Sciences and the University’s community of International Institutes, Jenkins Hall houses the newly established Keough School of Global Affairs and eight of its associated semi-autonomous international institutes. Nanovic Hall is home for the academic departments for Sociology, Economics and Political Science. Located on a key gateway site at the entrance to the University, these buildings establish an anchor to its ceremonial main thoroughfare, and completes one side of one of Notre Dame’s newer quadrangles. Major instructional spaces are located on the first floor and lower level to accommodate ease of movement for students and faculty. The first floor provides an array of instructional spaces as well as various collaborative learning environments. The Forum is the building’s major gathering space, functioning in a multitude of ways, configured to accommodate individual and group study, and easily filling the role of lecture hall and events space. Below, on the lower level, connected physically and visually to the main floor by a pair of open staircases, are all of the typical classrooms and instructional spaces including the Mediation Room and the Integration Lab (I-Lab). The Mediation Room allows both students and faculty the ability to observe diplomacy in action, while the I-Lab accommodates a distinctive series of interdisciplinary pursuits designed to prepare the student for the global employment landscape within an informal, flexible and reconfigurable suite.

The building’s Collegiate Gothic expression and palette of materials conform to the University’s planning directive that build upon Notre Dame’s distinct architectural character. The plan configuration is compact and affords ample opportunity for natural illumination. This building will meet or exceed the University’s ambitious goals for enhanced performance and sustainability, and its stipulated requirement that it be ‘built for the ages’.

Project Credits
Project: Jenkins and Nanovic Halls
Client: University of Notre Dame
Architect: HBRA Architects
General Contractor: Pepper Construction Company
Specifications Writer: ArchiTech Consulting Inc.
Civil Engineer: DLZ Indiana, LLC
M/E/P Engineer: Environmental Systems Design, Inc.
Life Safety: Jensen Hughes
Lighting Designer: Schuler Shook
Structural Engineer: Thornton Tomasetti, Inc.
Landscape Architect: Arkos Design, Inc.
Cost Estimator: CCS International, Inc.
Acoustical Consultant: ARUP
Exterior Envelope Consultant: Wiss, Janney, Elstner Associates, Inc.
Photography: Steve Hall/Hall + Merrick Photographers
Size: 185,276 square feet

Upcoming Events

  • Design Smarter: Leveraging GIS, BIM, and Open Data for Better Site Selection & Collaboration

    Live Webinar

    Register for Free
  • Slate Reimagined: The Surprising Advantages of Slate Rainscreen Cladding

    Webinar

    Register Now
  • The State of Residential Design Today: Innovations and Insights from RADA-Winning Architects

    Webinar

    Register for Free
All Events