Project Description
FROM THE ARCHITECTS:
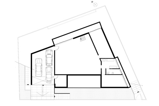
Located in one of the highest points in Oeiras, Portugal, with a view over the Tejo river and the Atlantic ocean, this house is based on a trapezoidal terrain which formed the concept for the creation of this project.
The terrain characteristics and customer requirements originated two main staggered volumes but perfectly aligned with batch limits bring a certain dynamic to the house at the same time protects it from the north and northwest winds.
Studied to take advantage of the climate and geographical location is south facing completely with large glazed areas and balconies overlooking the wonderful views.