Jade Residence

Project Details

Project Name
Jade Residence
Location
WildwoodNJ
Architect
E/L STUDIO
Project Types
Shared By
dmadsen
Project Status
Built
Size
3,310 ft²

Project Description

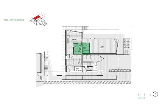
Building on the family business, an adjacent motel in Wildwood’s doo-wop district, the Jade residence does double-duty. It’s a vacation home that works hard as well as a retirement home that grows to make space for the next generation. Ground-floor rental units replicating the original motel units are the foundation to the family residence on the upper floors. A double-height living room in the residence connects the master and guest levels and features two large openings towards the breeze and view of the ocean and motel pool, respectively. Light monitors above orient due south to provide constant diffuse light to the interior while maximizing solar gain on collectors outside. A geo-thermal system and passive ventilation reduce the extremes of the heating/cooling load and necessity for mechanical HVAC except for the most severe days. Standard cladding and window units are customized to create a hurricane-resistant rain screen with perforations at heights for adults and children alike. Material details translate the doo-wop resort vocabulary to a contemporary idiom transforming form richly saturated color at the heart to increasing lightness at the periphery.

Upcoming Events

  • Design Smarter: Leveraging GIS, BIM, and Open Data for Better Site Selection & Collaboration

    Live Webinar

    Register for Free
  • Slate Reimagined: The Surprising Advantages of Slate Rainscreen Cladding

    Webinar

    Register Now
  • The State of Residential Design Today: Innovations and Insights from RADA-Winning Architects

    Webinar

    Register for Free
All Events