Iowa City Public Works

Project Details

Project Name
Iowa City Public Works
Location
310 Napoleon LaneIowa CityIA52240
Project Types
Project Scope
New Construction
Shared By
Madeleine D’Angelo
Project Status
Built
Year Completed
2019
Style
Modern
Size
99,294 ft²

Project Description

The brief for Iowa City’s new public works facility came with at least one significant constraint. “We were given a budget for a standard utility shed,” says Jesse Bulman, of Iowa-based office Neumann Monson Architects: the designers, accustomed to creating large-scale commercial and mixed-use projects with more than a modicum of aesthetic panache, were being asked to train their architectural talents on a very small target—and to do it with as much economy as possible. In response, NMA came up with a high-functioning structure that’s not only attractive but more than a little enigmatic: a glamorous box concealing an unglamorous program.

The project is part of an effort to consolidate previously scattered elements of the city’s service infrastructure—buses, cleaning equipment, other pieces of civic machinery—on a single 10,000-acre lot, just south of downtown on the banks of the Iowa River. NMA is planning the entire multi-phase project, and as the first part, the public works building stands as a kind of proof of concept for the firm’s overall approach. Though marginal, and still largely undeveloped, the area surrounding the site has considerable potential: as Bulman notes, an adjacent roadway “will become an arterial route connecting the southern half of city to the interstate,” while a public park to one side and a future residential district to the other give the location a promising future.

With that in mind, the architects took a simple, largely concrete frame—intended as a storage and repair space for police and fire vehicles, as well for personnel training and other purposes—and used a series of windows that not only break up the mass but give the building a mesmerizing aura. This effect is achieved not using glass but rather a semi-translucent plastic material, divided by regular mullions and backlit by concealed LED lighting at the base. “We had a lighting expert come in,” explains Bulman, “and they played with some different options.” The end result is a subtle piece of visual trickery, the dense polyurethane rippling like water in daylight and then lighting up with an enticing glow at night. For joggers and bikers in the adjoining park, as for the future residential neighbors, the ever-changing façade is a genuine enhancement for the community, preferable to the typical shed with its featureless corrugated-aluminum envelope.

For the staff inside, NMA’s solution is also a win: the windows, augmented by multiple skylights overhead, bring in enough daylight to make for safer work conditions as well as reduce the need for artificial lighting (the building is targeting LEED Gold). Improved efficiency (to say nothing of the architects’ budgetary restraint) certainly makes the building a hit with cost-conscious bureaucrats; but as the architects see it, the greatest advantage to their upgraded shed is that its visual appeal will help pave the way for the rest of the public works development, persuading skeptical officials and local residents alike that their master plan has merit. “It’s really hard to get taxpayers excited about these buildings,” says Bulman. “Most people never get to see them, but they depend on them.” With its design, NMA has succeeded in bringing some excitement to an oft-neglected but essential building type.

Project Credits
Project: Iowa City Public Works
Location: Iowa City, Iowa
Client/Owner: City of Iowa City
Architects: Dave Zahradnik, AIA, Principal; Jesse Bulman, AIA, Project Manager; Scott Palmberg, AIA, Brandon Fettes, Bob Gassman
Mechanical Engineer: modus
Structural Engineer: Raker Rhodes Engineering
Electrical Engineer: modus
Civil Engineer: Snyder & Associates
General Contractor: Merit Construction
Landscape Architect: Genus Landscape Architects
Lighting Designer: Trivalent Lighting Studio
Equipment Consultant: HDR
Size in Square Feet: 99,294
Cost: $11,300,000

Materials and Sources
Adhesives, Coatings and Sealants: MasterSeal NP2, BASF
Bathroom Fixtures: American Standard
Ceilings: Optima, Armstrong
Concrete: Hawkeye Ready mix
Countertops: Corian
Exterior Wall Systems: MPC Enterprise
Flooring: Ashford Formula
Furniture: Equipto
Glass: Kingspan
Gypsum: USG
HVAC: ThermoTek, Space-Ray
Insulation: Hunter Panels
Lighting: flex Lighting Solutions
Masonry and Stone: Seedorff Masonry
Metal: Superior Welding and Fabrication
Paints and Finishes: Sherwin-Williams
Roofing: Sika, Centria
Site and Landscape Products: Country Landscapes
Structural System: New Millennium
Windows and Doors: See Glazing for Windows, Assa Abloy / Curries for HM Doors and Fames and hardware

FROM THE ARCHITECTS:

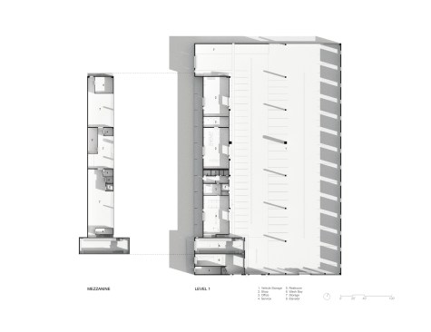
This project represents the ambitious first step in a 14-acre master plan to consolidate and upgrade a scattered set of aging municipal operations. The predominately concrete structure houses the Streets and Water Departments along with their associated vehicles and equipment. Program includes shop space, large-scale storage, mezzanine storage with elevator and forklift access, a fire training tower, fire pump truck training, police and fire storage, and vehicle/equipment wash bays.

The facility’s east facade faces a residential neighborhood across an arterial just south of downtown. It sets an edge condition for the well-trafficked bike trail that links recreational grounds to the north and south, establishing a civic presence and measured cadence that belies the rough and tumble flexibility that it accommodates deeper into the site.
Projecting windows modulate the structure’s scale and provide dynamic exterior lighting at night. The diffuse daylight that they admit during work hours—combined with 40 skylights as well as translucent polycarbonate walls on the north and south facades—provides a superior work environment and lends operational efficiencies. The west façade provides vehicular access to services including shops and wash bays. A 12-foot canopy provides outdoor cover for materials storage.

The building’s volumetric aspect ratio enables the mechanical system to heat and cool efficiently. The structure’s 50-foot module anticipates future additions and modifications. Material choices are highly durable, easily maintained, and cost effective. The building’s anticipated LEED Gold certification furthers the city’s commitment to carbon neutrality as they deliver vital public services from this facility.

Upcoming Events

  • Design Smarter: Leveraging GIS, BIM, and Open Data for Better Site Selection & Collaboration

    Live Webinar

    Register for Free
  • Slate Reimagined: The Surprising Advantages of Slate Rainscreen Cladding

    Webinar

    Register Now
  • The State of Residential Design Today: Innovations and Insights from RADA-Winning Architects

    Webinar

    Register for Free
All Events