Imperial

Project Details

Project Name
Imperial
Location
Sugar LandTX
Architect
Gracepoint Homes
Project Types
Shared By
dmadsen
Project Status
Built

Project Description

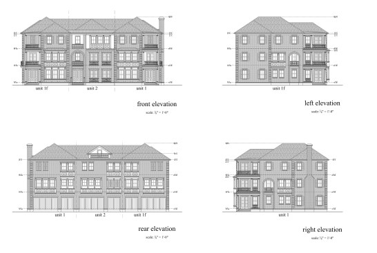
Imperial provided a unique challenge to a company committed to designing homes specific to their surroundings. A mixed-used development built on the site of an abandoned sugar factory, Imperial is a work-live-play community with a “sweet” history. Central to the redeveloped area is a million-dollar fountain located in a roundabout that fronts our six-acre parcel of land, which is surrounded on its other sides by waterways. We designed our homes to follow the curve of the traffic circle, creating an almost trapezoidal design that is wider in the front than in the back. The interiors of the three-story homes, however, are rectangular, allowing for traditional furniture placement, with extra space used for ductwork and other behind-the-walls necessities. The homes boast generous outdoor living space, including porches and second- and third-floor balconies. Consideration is given to homeowners who need additional storage – units have three-car garages – and like to entertain with an open second floor. The third floor is a homeowner retreat, with much of the space devoted to the expansive master suite.

The exterior elevations of the townhomes take their cue from traditional brownstones, a departure from what is typically found in the Houston suburb of Sugar Land. This classic architecture pays homage to the area’s history, as the sugar factory was the catalyst for the establishment of Sugar Land, once a company-owned town that now is one of the nation’s fastest-growing suburban communities. One of the reasons for Sugar Land’s current popularity is the watchful eye of local government, which carefully mandates development within its city. We worked closely with city officials to follow the many nuances of development in Sugar Land, ensuring our gated neighborhood within the greater Imperial community follows all city ordinances and still introduces a new type of residential living to this booming area.

Upcoming Events

  • Design Smarter: Leveraging GIS, BIM, and Open Data for Better Site Selection & Collaboration

    Live Webinar

    Register for Free
  • Slate Reimagined: The Surprising Advantages of Slate Rainscreen Cladding

    Webinar

    Register Now
  • The State of Residential Design Today: Innovations and Insights from RADA-Winning Architects

    Webinar

    Register for Free
All Events