IGZ Campus Falkenberg

Project Details

Project Name
IGZ Campus Falkenberg
Project Types
Office
Project Scope
New Construction
Shared By
Madeleine D’Angelo
Project Status
Built
Year Completed
2020

Project Description

Digital logistics firm IGZ was launched just 20 years ago in a barn in the tiny town of Falkenberg, in southern Germany’s Upper Palatinate region. Today, the company is still based in the village—a bit of a surprise given that IGZ now boasts some 450 employees, and that it’s worked with hundreds of clients all across Europe, including fashion giant Hugo Boss and carmaker BMW. The company’s hometown is so small that when IGZ first approached the architects at Berlin-based studio J. Mayer H. to tackle its new headquarters commission, “We didn’t know which Falkenberg they meant,” says Hans Schneider. As JMH’s project manager for the 86,000-square-foot building, Schneider was tasked with helping to put this Falkenberg on the map.

The project, which opened this fall, has certainly done that. On the outskirts of IGZ’s hometown, the new facility is a gleaming beacon, an office building with all the panache and sophistication of a big-city corporate headquarters but with a warm, rural soul. Composed of a glass envelope affixed to a concrete structural core, the rectangular volume is sheathed by a self-supporting wooden screen and graced with a surrounding exterior terrace and interior finishes made of smooth, gleaming granite. Altogether, the design reflects the JMH team’s interpretation of the traditional streetscape of Falkenberg. “We were looking at the old buildings in the town,” recalls Schneider, “and we kept seeing these houses with diagonal wooden members.” Half-timbered structures are commonplace throughout Bavaria, and the irregular truss system that wraps around the new IGZ building is a nod to that centuries-old tradition.

The rest of the design is anything but traditional. Ultra-energy efficient, the office is equipped with geothermal heating and rooftop solar panels; none of the building components were made from oil-based materials, and the stone was quarried in the area, adding to the place-appropriate feel while further reducing the carbon output of the construction process. Not only that, but all of the employees work a short distance from the building, ensuring that the overall ecological footprint will remain small over the long term.

That dedication to localism, to the scale and simplicity of its small-town environs, is essential to the project’s ethos. “Everybody is really happy working there,” explains Schneider: Even as the company has set up satellite offices in other cities, the family that founded it (now in its second generation) has never seriously considered moving the base of operations elsewhere. “The people have built houses in Falkenberg, had families,” Schneider says, and their employers are eager to preserve the close-knit feeling that they believe has been essential to their success. As incongruous as the new building might appear at first, its intent—deftly expressed in the beguiling web work of its wooden shell—is to weave the company ever more tightly into the fabric of the surrounding community.

It achieves that goal with new amenities, including a gym and first-floor café, that will be welcome additions to Falkenberg’s social and commercial life. Up close, or seen from the rural road approaching, the building is indeed a striking presence—but it can also, as Schneider notes, “hide behind trees or a hill,” disappearing into the rugged natural landscape depending on one’s vantage point. The building is only a small foretaste of what’s to come, as JMH continues work on an additional four structures, all part of its as-yet unveiled master plan for IGZ. Even in the midst of the ongoing pandemic, the new building has already proved its worth, with staff preferring to come in and work in small, socially distanced groups. “They’re using it a lot,” says Schneider. “The countryside is different from the city. People don’t really want to work from home.”

FROM THE ARCHITECTS:

ABOUT IGZ

The software and engineering company IGZ (Ingenieurgesellschaft für logistische Informationssysteme mbH) uses SAP standard software to develop technical software solutions in production and logistics for companies across Europe. Thanks to its seat in the WaIdnaab Valley in Upper Palatine, IGZ Falkenberg has been able to harness the strengths of the rural environment for over 20 years. Originally founded in a refurbished barn, the company now employs over 500 people; a rapid expansion requiring the necessary space to accommodate their growing number of clients and projects. This extension of IGZ headquarters not only offers the company and its employees a modern and innovative workplace, but the design also embeds itself within the picturesque nature, social fabric and familiar atmosphere of its rural surroundings.

THE DESIGN

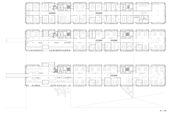
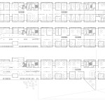
J. MAYER H. won the design for the main building of the IGZ campus at an invited competition. The building is the first new construction of the site’s extended masterplan. Reaching over 120m in length and sitting at the highest point of the site, the new construction complements existing company-owned buildings, creating a harmonious ensemble. Further structures are planned for the company restaurant, an innovation center and other office buildings, which, like the main building, focus clearly and precisely on the site’s surroundings. The construction was built using local materials like granite and wood, typical of the Upper Palatinate region.

Innovative construction engineering techniques ensure a holistic approach to the building concept. Priority was given to providing a regenerative energy supply using geothermal energy and photovoltaic systems. The new IGZ building makes clear that construction work in rural areas is not only reserved for agriculture, tourism or local recreation. Instead, in this age of "New Work" (Work 4.0), the new headquarters of “IGZ-The SAP Engineers”, allows them to strengthen their local ties and reaffirm their presence as an innovative and responsible employer in the region.

CONSTRUCTION

The building was planned as a skeleton structure of reinforced concrete. All load-bearing and bracing components are made of wood and exposed concrete, creating a visual blueprint of IGZ’s company headquarters. The partition walls and built-in furniture are non-load-bearing and made entirely of wood and glass. Composed of various elements, the construction creates a light and warm atmosphere, while remaining highly flexible to future alterations. The grey glazed wood façade further develops and reinterprets the materiality of the company’s existing buildings.

The building relies on a passive temperature control method that is integrated into the reinforced concrete ceilings. Heating and cooling is thus regulated by the building’s concrete core temperature control system. The energy required for this is sustainably generated through a total of 60 geothermal piles, each 100m deep.

THE INTERIOR

J. MAYER H. developed the building’s interior design concept in close collaboration with the client. Steelcase was the main partner for the design of workstation furnishings. The loft-like work landscape, composed of exposed concrete and wood was furnished with Steelcase’s Flex Collection, designed to allow teams to make their space more flexible.

The furniture is equipped with wheels, making it adaptable to various, changing forms of individual and group work. Flex complements the overall geometry of the building’s structure with its diagonal elements and clear-cut design. The design’s language is communicated through large-scale wooden fixtures in the foyer and other areas, and reflected further in the rounded shapes of the movable desk-walls and mobile whiteboards. The choice of haptic, matte black surfaces, furthermore matches the wood and concrete elements present throughout the building.

Steelcase collaborated with Kvadrat, using their high-quality fabrics to produce a new range of seating areas and desk chairs (Please). Viccarbe's soft seat products were used for communal areas.

COMPLETION

The project was finalized in autumn 2020. Thanks to the flexibility of the interior furnishings and the building’s geometry, the inner layout can easily be adapted for Covid-19 related workplace changes and requirements, such as accommodating for Hygiene regulations and ensuring the safe distancing of employees.

Project Credits
Architect: J. MAYER. H und Partner, Architekten mbB
Invited Competition, 2018, 1st Place
GFA: ca. 8000qm
Client: GZ Immo GmbH
Structural Design Engineer: Bodensteiner + Partner GbR, Weiden
Building Service Engineers: Grünwald + Ach GmbH, Weiden and Ingenieurbüro Zeitler, Rottendorf
Lighting Design: Licht Kunst Licht AG, Berlin
Fire Prevention Plans: Gerhard Schmidt, Weidenberg
Landscape Architects: S H L Architekten und Stadtplaner, Weiden
Interior Design Partner: Steelcase, Raumhaus Berlin, Kvadrat, Brunner,
Acoustics: Soundcomfort

Upcoming Events

  • Design Smarter: Leveraging GIS, BIM, and Open Data for Better Site Selection & Collaboration

    Live Webinar

    Register for Free
  • Slate Reimagined: The Surprising Advantages of Slate Rainscreen Cladding

    Webinar

    Register Now
  • The State of Residential Design Today: Innovations and Insights from RADA-Winning Architects

    Webinar

    Register for Free
All Events