I-40 Solar Farm Information & Welcome Center

Project Details

Project Name
I-40 Solar Farm Information & Welcome Center
Location
Mile Marker 44Interstate 40, WBStantonTN38069
Architect
ANF Architects
Project Scope
New Construction
Shared By
Eli
Project Status
Built
Year Completed
2017
Size
14,000 ft²
Team
design architect: Louis R. Pounders
project director: Bill Ferguson
project manager: Brian Martinelli
interior designer: Liz Engel

Project Description

In 2012, the West Tennessee Solar Farm officially began generating power. The 5-megawatt facility, developed by the University of Tennessee Research Foundation, is located on Interstate-40 about 30 miles east of Memphis. The 21,434 solar panels were arranged around an open meadow intended as the site for a future visitor center designed to educate the public about solar energy in Tennessee. This center would be accessible 24-7 to local visitors, tourists and the millions of motorists who drive by the solar farm annually.

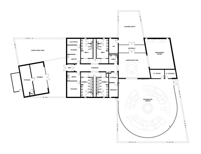
The new State-run visitor center houses four related functions: a Tennessee Welcome Center with reception, tourism displays, restrooms and staff spaces; an Information Center featuring an interactive renewable-energy exhibit; an attached Vending structure and an open-air covered Picnic Terrace. The large entry canopy can shelter an entire school group on a field trip. The radial site plan, including the main building, a storage building with service yard, picnic pavilions and pads and access walkways, responds to the solar farm’s linear geometry. The drives and parking areas were designed under a separate contract. The west-bound drive system was installed in 2014; the eastbound, with its highway overpass, is a future project.

Informed by the futuristic look of the solar farm itself, the architecture is sleek and sculptural, even stealthy, when viewed from the 70-mile-an-hour Interstate highway. The glass-enclosed information space, the focus of the Center, offers an almost 360-degree vista of the surrounding solar panels. Oriented towards I-40, the colorful LED-lit energy exhibit becomes a prominent design element visible from the highway. Angled walls, a subtle gesture directed toward the adjacent Interstate, and cantilevered roof overhangs shade the glass walls.

The project exceeds the Tennessee Sustainable Design Guidelines for Land Management, Water Efficiency, Energy Efficiency, Material Use and Indoor Environmental Quality. Roof-mounted solar panels were omitted; electricity from the surrounding solar array is fed through the local utility grid which powers the facility so indirectly, the building is powered by the sun. The facility, offering an educational component for the West Tennessee Solar Farm, is a working example of sustainable and energy-driven design.

Upcoming Events

  • Design Smarter: Leveraging GIS, BIM, and Open Data for Better Site Selection & Collaboration

    Live Webinar

    Register for Free
  • Slate Reimagined: The Surprising Advantages of Slate Rainscreen Cladding

    Webinar

    Register Now
  • The State of Residential Design Today: Innovations and Insights from RADA-Winning Architects

    Webinar

    Register for Free
All Events