Hyundai Capital Convention Hall

Project Details

Project Name
Hyundai Capital Convention Hall
Location
SeoulSouth Korea
Architect
Gensler
Project Types
Commercial
Shared By
katie_gerfen
Project Status
Built

Project Description

From the May 2019 Issue of ARCHITECT:

An events space for a Korean automaker signals its commitment to design innovation.

Take one part James Turrell installation, two parts science-fiction blockbuster, sprinkle with a dash of glamour, and serve with copious technical aplomb—this is the approximate recipe for Gensler’s Hyundai Capital Convention Hall, an all-purpose events space inside the international automaker’s headquarters in Seoul, South Korea. Located on the top floor of a large corporate complex, the new interior immediately marks a stirring break from Hyundai employees’ typical workaday environment. The space’s walls and lofty ceiling are entirely covered in an unearthly, luminous white material, while a similar treatment, only more lustrous, continues across the floor, giving the interior almost the appearance of a top-secret laboratory.

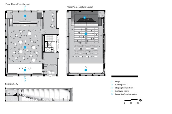
Once the eyes adjust to the gleaming, white-on-white interior, the space is revealed to be gently sculpted, with the ceiling separated into individual banded sections with lighting embedded between them; the strips step higher as they move toward the front of the room, forming something like a proscenium that outlines a stage at the far end. With a large bank of black risers (augmented by chairs for larger functions) to the rear of the space, this theatrical setup can be used for conventional presentations, but also adapted to any event of the client’s choosing, thanks to a retractable system that folds the riser seating neatly away and into a black case against wall.

The same riser case hides a complex mechanical suite as well as a secondary meeting room, making the Convention Hall an all-purpose venue for myriad company functions—one that projects to visitors and workers alike an image of Hyundai as a forward-thinking innovator with a focus on high design. That message is driven home through a subtle bit of branding, arguably the design’s most crafty feature, as the arches framing the space each make an H-like shape reminiscent of the insignia seen on millions of hubcaps and grilles the world over.

Project Credits
Project: Hyundai Capital Convention Hall, Seoul, South Korea
Client: Hyundai Capital
Architect/Interior Designer: Gensler, Los Angeles . Philippe Paré, AIA (principal and design director); Mirko Wanders, AIA (associate and senior designer); Joanne Chan (job captain); Tina Rothermund, AIA (project architect); Amy Pokawatana, Marissa Tan-Gatue (project managers); Shawn Shin, Julia Park, Fernando Flores, Shun Nagasaka (project staff)
Lighting Designer: Kaplan Gehring McCarroll Architectural
Acoustician: Veneklasen & Associates
Size: 6,250 square feet
Cost: Withheld

Materials and Sources
Acoustical Plaster: Baswa (Baswaphon)
Needled Carpet: Findeisen
Epoxy Paint: BASF
Felt Panel: Sutherland Felt Co.
Curtain on Silent Gliss Track: Maharam (Kvadrat)
Fabric Wrapped Acoustic Panels: Maharam (Kvadrat)
Black Glass: Glass Pro
Plastic Laminate: Formica
Paint: Dunn Edwards
Black Granite: Tristone & Tile
Rubber Base: Burke
Upholstery: Maharam
Wood Flooring: Greyne Co.
Furniture: Audience Systems (retractable seating); Vitra (.03 chair, Click table)
Lighting: iGuzzini


This project won a 2019 AIA Institute Honor Award for Interior Architecture

From the AIA:

Atop the south tower of Hyundai Capital’s global headquarters in Seoul, this 6,250-square-foot assembly space hosts large training sessions, employee functions, and company-wide meetings for the South Korean financial powerhouse. The new venue straddles art and architecture, manipulating each user’s perception of materials, light, and space.

Though the client asked for a refined design integrated with cutting-edge technology, supreme acoustics, and innovative lighting, the team was given near free rein for the project. By creating a timeless and distraction-free space, the team was able to craft a visual experience that echoes Hyundai Capital’s minimal and progressive brand.

Finding inspiration in the West Coast minimalist Light and Space Movement of the 1960s and ’70s, and the bright white cyclorama walls of classic photography studios, a molded acoustical plaster shell is the basis for the project’s interior. A sly nod to the company’s stylized “H” logo is replicated in the shell, giving a rhythm to the space while hiding its technical equipment. The space is bracketed by white walls with rounded corners that, in concert with a reflective floor finish and cove lighting, create the impression of a space without boundaries.

An outer container of felt panels that increase acoustic absorption wraps the space and provides a visual counterpoint to the white shell. The industrial material is heightened by careful craftsmanship and bespoke details such as brass fasteners. Ultimate flexibility for seating can be found in a double-height steel-clad box that houses retractable bleachers. Behind the bleachers, the box contains a technologically advanced control room and a secondary presentation room that contrasts with the main space with its washed black walls and LED lighting.

By rehabilitating the tower’s existing double-height space, the team provided a cost-effective solution and created a new space that spurs productivity. Its adaptability allows the space to exist as an intimate town hall available year-round for events.

FROM THE ARCHITECTS:

Hyundai Capital's global headquarters commissioned Gensler to design a custom assembly space atop their south tower in Seoul. The financial powerhouse desired an environment flexible enough to host large training sessions, company-wide meetings, guest lectures, and employee parties. The design team aimed to create the most timeless, distraction-free venue it could imagine: a space without boundaries. Of equal importance was crafting a visual experience that communicates the essence of Hyundai Capital’s minimalist, yet forward-thinking brand. Though given near carte blanche to design the perfect space, characteristics on the client’s wish list included refined, compelling design; cutting-edge technology; great acoustics; and innovative lighting. The new Hyundai Capital Convention Hall blurs the line between art and architecture by changing one’s perception of materials, light, and space.

Upcoming Events

  • Build-to-Rent Conference

    JW Marriott Phoenix Desert Ridge

    Register Now
  • Reimagining Sense of Place: Materiality, Spatial Form, and Connections to Nature

    Webinar

    Register for Free
  • Homes that Last: How Architects Are Designing a Resilient Future

    Webinar

    Register Now
All Events