Hunters View Housing Phase 2

Project Details

Project Name
Hunters View Housing Phase 2
Project Types
Affordable Housing
Project Scope
New Construction
Shared By
katie_gerfen
Project Status
Built
Year Completed
2017
Size
246,086 ft²

Project Description

2018 Residential Architect Design Awards / Affordable Housing / Award

“I like how it’s broken down so that it reads as a series of buildings—a series of neighbors. For San Francisco, that’s very contextual.” —Dirk Denison

Hunters View Housing Phase 2 comprises seven new buildings on three blocks overlooking San Francisco Bay. It’s part of a larger master plan for a mixed-income community designed to replace a series of temporary barracks built in the 1940s that had been used well past their intended lifetime as substandard public housing. Designed by local firms Paulett Taggart Architects and David Baker Architects, the 246,086 square feet of construction in this second of three phases includes 178 units, plus substantial community amenities and services.

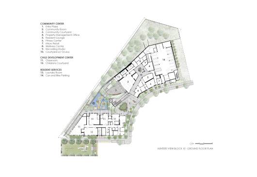
The serrated façade of the five-story-tall Block 10 building responds dramatically to its site at a 90-degree bend in Fairfax Avenue on the highest point in the entire Hunters View development. Colorful glazed panels clad the building’s saw-toothed bays and reflect the building’s role as a vibrant neighborhood hub.

Slightly below Block 10, on a flat part of the site, two five-story apartment buildings frame Fairfax Avenue on Blocks 7 and 11. On the north and south ends of these blocks, the topography drops off and one- to four-bedroom townhomes organized around landscaped central courtyards step down the hill. A diversity of scale and texture was created by dividing the design authorship of different structures between the two joint-venture architecture firms.

Phasing the project avoided displacement by allowing on-site relocation during construction. More than 60 percent of existing residents moved into the new development, compared to a 15 percent typical retention in similar projects. Area crime has declined and school attendance rates are up by 30 percent. The resulting community’s design reflects its needs and desires in an engaging set of evocative architectural forms.

See the full list of winners of the 2018 Residential Architect Design Awards.

Project Credits
Project: Hunter’s View Housing Phase 2 (Blocks 7, 10 & 11), San Francisco
Client: HV Partners 2, L.P.
Architect: Paulett Taggart Architects & David Baker Architects, a joint venture, San Francisco . Paulett Taggart, FAIA, (principal and founder, Paulett Taggart Architects); Roselie Enriquez Ledda, AIA (senior associate, Paulett Taggart Architects); David Friedlaender, AIA (associate, Paulett Taggart Architects); Daniel Simons, AIA, Amanda Loper, AIA (principals, David Baker Architects); Sally Roth, AIA (technical director, David Baker Architects); Julie De Jesus (associate, interiors lead, David Baker Architects)
M/E Engineer: Emerald City Engineers
Structural Engineer: KPFF Consulting Engineers
Civil Engineer: 10: Carlile Macy
Construction Manager: APC International . Allan Butler
General Contractor: 10: Cahill/Nibbi Joint Venture
Landscape Architect: Andrea Cochran Landscape Architecture (Block 10); GLS Landscape Architecture (Blocks 7 & 11)
Lighting Designer: Horton Lees Brogden Lighting Design
Acoustic: Vibro-Acoustic Consultants; Charles M. Salter Associates
Shoring Design: Tuan & Robinson Structural Engineers
Waterproofing: Steelhead Engineers, Inc.
Cost Estimator: Cahill Contractors/Nibbi Brothers General Contractors Joint Venture
Size: 92,587 square feet (Block 10); 62,059 square feet (Block 7); 82,440 square feet (Block 11)
Cost: $38 million (Block 10); $47 million (Blocks 7 and 11)

Materials and Sources
Appliances: Frigidaire
Bathroom Fixtures: Elkay
Carpet: Interface
Cabinets: Lanz Cabinets
Ceilings: Armstrong Ceilings
Concrete: Nibbi Concrete
Countertops: Wilsonart
Exterior Wall Systems: Nichiha USA
Flooring: Armstrong Rejuvenations, Karndean LVT Floors, Interface
Glass: Vitro Architectural Glass
Gypsum: Pabco Gypsum, Georgia-Pacific
HVAC: Carrier
Insulation: Owens Corning
Kitchen Fixtures: Elkay
Lighting Control Systems: Siemens
Paints/Finishes: Sherwin-Williams
Photovoltaics/Other Renewables: Solar hot water domestic water
Roofing: GAF
Structural System: Concrete podium with post-tensioned first level, wood frame above
Windows/Doors: VPI Quality Windows (windows); T.M. Cobb (doors)

Upcoming Events

  • Design Smarter: Leveraging GIS, BIM, and Open Data for Better Site Selection & Collaboration

    Live Webinar

    Register for Free
  • Slate Reimagined: The Surprising Advantages of Slate Rainscreen Cladding

    Webinar

    Register Now
  • The State of Residential Design Today: Innovations and Insights from RADA-Winning Architects

    Webinar

    Register for Free
All Events