Hunt Country Hilltop House

Project Details

Project Name
Hunt Country Hilltop House
Location
The PlainsVA
Project Types
Shared By
dmadsen
Project Status
Built
Size
7,130 ft²

Project Description

The house is situated on a stunning eighty-acre mountain property, with long views across the Virginia Piedmont and its famed Hunt Country. This bucolic setting provided the backdrop for a new house that is programmatically contemporary, while stylistically hearkening to an earlier time. The goal was to create a home that respects its place and heritage in an established region, and appears to have existed there for many years; while at the same time takes advantage of the site and provides a home that functions well for modern living and entertaining.

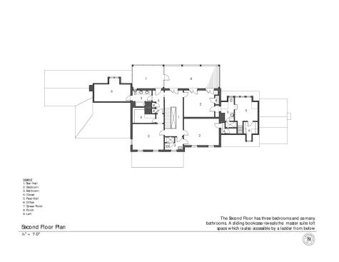
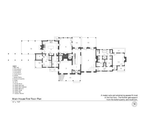
The house was conceived as a Virginia farmhouse with telescoping wings that appear to have been added on over many years. The linear room arrangement provides a broad range of vantage points from both inside and outside the house. Several covered porches provide space for gathering as well as quiet contemplation in the landscape. The second floor includes a traditional screened sleeping porch, offering an elevated perspective of the surrounding countryside.

The design utilizes brick, clapboard, standing seam metal roof, wood shutters, as well as traditional detailing to support its old house appearance. Interior spaces continue the traditional feel through a wide range of flooring materials, molding, paneling, lighting, tile, and antique hardware.

Each space was considered carefully for its potential to tell a story about an old house. Was the space ‘original’? Did it ‘evolve’? Could it have been an old porch that was enclosed? The ability to evoke curiosity amongst its visitors connects this new home to its neighbors in Hunt Country and also allows the architectural history of the regional traditions to continue.

Upcoming Events

  • Design Smarter: Leveraging GIS, BIM, and Open Data for Better Site Selection & Collaboration

    Live Webinar

    Register for Free
  • Slate Reimagined: The Surprising Advantages of Slate Rainscreen Cladding

    Webinar

    Register Now
  • The State of Residential Design Today: Innovations and Insights from RADA-Winning Architects

    Webinar

    Register for Free
All Events