House XL

Project Details

Project Name
House XL
Location
SloveniaSlovenia
Architect
SoNo Arhitekti
Project Types
Single Family
Shared By
Sara Johnson
Project Status
Built
Year Completed
2016
Size
4,413 ft²
Team

Project Description

FROM THE ARCHITECTS:

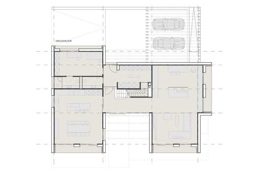
Family Villa XL is located on the outskirts of a new residential area and it is designed for a large family of seven. Area is dominated by typical Slovenian urban / rural landscape, that is why the design paraphrases the surrounding typical architectural elements . The house is conceptually formed from two mutually parallel volumes and one connecting volume, which is placed perpendicularly to the other two. All the volumes are elongated with symmetrical gable roofs. Shortest volume is extended into a roofed carport.

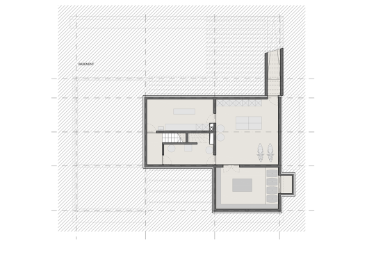
While the basement level is constructed with reinforced steel the upper floors consist entirely of cross-laminated timber elements.

Floor plans are spacious and organized in three levels. Living area, enclosed with large glass surfaces opens to the atrium maintaining the flowing communication between the house interior and surrounding nature.

Facade is composed with large-format panels – the connection volume in lighter and the other two in darker colours. Larger glass surfaces are moved inwards and combined with wood cladding. Placed over them is a pattern of vertical narrow wooden elements that simultaneously function also as sunscreens.

Upcoming Events

  • Build-to-Rent Conference

    JW Marriott Phoenix Desert Ridge

    Register Now
  • Reimagining Sense of Place: Materiality, Spatial Form, and Connections to Nature

    Webinar

    Register for Free
  • Homes that Last: How Architects Are Designing a Resilient Future

    Webinar

    Register Now
All Events