House Tranquillo

Project Details

Project Name
House Tranquillo
Location
SarasotaFL
Architect
Seibert Architects
Project Types
Single Family
Project Scope
Preservation/Restoration
Shared By
Miabelle Salzano
Project Status
Built
Year Completed
2017
Size
3,662 ft²
Team
principal: Samuel C. Holladay
interior designer: Pamela Riser Holladay

Project Description

FROM THE ARCHITECTS:

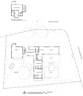
This house was initially designed in 1957 by Edward J. Seibert, FAIA and incorporates all the classic design concepts of that era: the interior spaces seamlessly flow from the interior to the exterior; the structure is honestly expressed; and materials are straightforward (terrazzo floors, cypress paneling, cypress siding and plaster walls and ceilings). It is our belief that these concepts are still valid after 61 years and are the foundation to all good design.

The original house design allowed for ample cross ventilation of all the spaces using either sliding glass doors or a combination of sliding glass doors and jalousie windows. Wood louvers were used in an interior bedroom to provide ventilation and privacy.

An addition, master suite and garage, were added to this house in the early 1970’s.

Over time, floors were covered with tile, ceilings were textured, cabinets changed, interior and exterior finishes were damaged. Deferred maintenance and indiscriminate removal of a column contributed to a result that was less than desirable from the original design intent. Fortunately, over the years there were not any major design changes to the overall floor plan of the original house and most of the damage and aesthetic changes could be overcome with the careful removal of extraneous finishes and the enhancement of what was remaining.

Superfluous drywall beams were removed. Older patches to plaster walls were repaired to match existing finishes. Quarry tile floors previously added were removed. All the original terrazzo floors were repaired and refinished. Textured ceilings were removed to the original plaster finish. Exterior wood siding was repaired as needed. A new interior and exterior paint scheme was introduced. Waterproofing, replacing outdated electrical systems, replacing failed sanitary sewers and providing efficient light fixtures were included in the scope.

The addition from the 1970’s had stucco applied over its original vertical siding. The stucco installation was failing, and it was then discovered that the vertical siding underneath it was damaged because of water intrusion and termites. The stucco was removed. The structure and siding were repaired as needed, windows replaced, and new interior finishes specified. Cork flooring, new tile and refinishing of interior casework completed the work in this part of the house.

The exterior of this house was repaired as needed. Columns were replaced where previously removed, sliding glass doors, wood louvers and jalousie windows were repaired and made operational. Overgrown and neglected landscaping was removed and replaced. Landscape features such as a live oak tree and mature mango trees were pruned. The concrete driveway was severely damaged by tree roots and was replaced with a locally obtained crushed shell.

Our design efforts, as well as the owner’s intentions, were focused on doing no harm to the existing design; sustainably enhancing its original concepts and updating it as much as possible for today’s use and into the future.

Upcoming Events

  • Design Smarter: Leveraging GIS, BIM, and Open Data for Better Site Selection & Collaboration

    Live Webinar

    Register for Free
  • Slate Reimagined: The Surprising Advantages of Slate Rainscreen Cladding

    Webinar

    Register Now
  • The State of Residential Design Today: Innovations and Insights from RADA-Winning Architects

    Webinar

    Register for Free
All Events