House on an Island

Project Details

Project Name
House on an Island
Project Scope
New Construction
Shared By
Miabelle Salzano
Project Status
Built
Year Completed
2018
Size
753 ft²

Project Description

FROM THE ARCHITECTS:

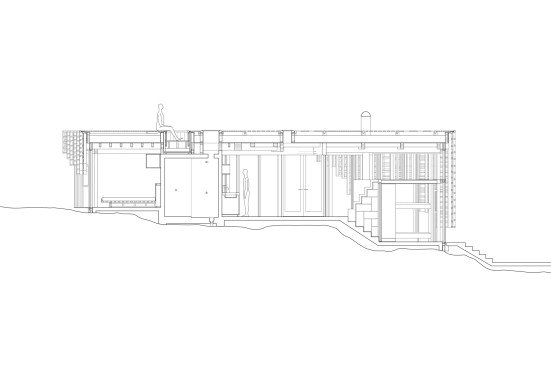
The small house is situated on an island on the south coast of Norway. The site is characterized by smooth and curved rocks that goes down towards the ocean. The house is built for two artists that wanted a house for contemplation and working.

You enter the project from the backside walking along a small hill. The entrance is a stair that goes through the building taking you to the entrance on the front side. The entrance sequence marks a transition and prepare you for the life on the Island.

The topography of the site was carefully measured to integrate the rocks into the project. Concrete floors in different levels connect to the main levels of the topography and create a variety of different outdoor spaces. The concrete floors and stairs dissolve the division of inside and outside. The interior becomes part of the landscape and walking in and around the cabin gives a unique experience, where the different qualities from the site becomes part of the architecture. From the concrete floors kitchen, bathroom and fireplace grows up to serve the inhabitants like furniture’s that sits on the rock.

A prefabricated timber structure is placed on the concrete floors and at last a light wood structure covers the cabin to filter the light and direct the views. The wood structure has a depth that creates a play of shadows through the day and a calm atmosphere resembling the feeling of sitting under a tree.

A small annex creates a fence towards the neighbor building and another sheltered outdoor space.

All exterior wood is Kebony which is a special heat- treated wood that will turn grey and require no maintenance.

Project Credits
Project: House on an Island, Skåtøy Island, Norway
Architect: Atelier Oslo
Consultants: Bohlinger + Grohman Ingenieure, Norconsult
Contractor: Admar AS
Size: 70 square meters; site area (753 square feet): 700 square meters (7,534 square feet)

Upcoming Events

  • Design Smarter: Leveraging GIS, BIM, and Open Data for Better Site Selection & Collaboration

    Live Webinar

    Register for Free
  • Slate Reimagined: The Surprising Advantages of Slate Rainscreen Cladding

    Webinar

    Register Now
  • The State of Residential Design Today: Innovations and Insights from RADA-Winning Architects

    Webinar

    Register for Free
All Events