House of the Woodland

Project Details

Project Name
House of the Woodland
Location
The BerkshiresMA
Architect
WOJR
Project Types
Single Family
Project Scope
New Construction
Shared By
katie_gerfen
Project Status
On the Boards/In Progress
Size
2,300 ft²

Project Description

This project won an honorable mention in the 2019 Progressive Architecture Awards

“This project is really thought out—especially cracking open the symmetrical gesture of the pyramid roof with the highly specific skylights. I think it hits a gestalt—for why architects today are focused on the roof and the power of it in design today.” —Claire Weisz, FAIA

A project brief is rarely so succinct, yet so remarkably open-ended, as the one for Cambridge, Mass.–based WOJR’s House of the Woodland in the Berkshires. “A building,” it read. “One that can act as a house. One that is extraordinary.” What the designers came up with is a suitably simple, adaptable, yet distinguished solution that mediates between the generic and the singular, the natural and the domestic.

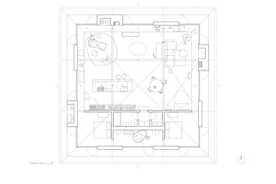
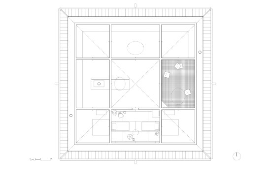
Set on a 25-acre site, the 2,300-square-foot house has a material palette restricted to cinder blocks, concrete, and plywood laminate. A modest budget made economy essential, and a straightforward parti ensured that the structure could be delivered with relative ease: The primary floor is divided into a nine-square grid, with symmetrical fenestration and only a few enclosed rooms.

There are second-level annex spaces, but these are ancillary to the plan, comprising a lofted bedroom over the first-floor bathrooms and a netted rumpus space strewn with pillows (presumably for the use of the client’s small children) strung over the lounge area. The most striking feature of the scheme is the ceiling: fashioned of plywood, it expresses the grid in a series of deep rectilinear coffers, pitched at the sides under the angle of the gabled roof and pierced from place to place by skylights that cast pools of sunshine on the floor below.

Referencing multiple architectural traditions—the one-room cabins of the American frontier, the rational grids of mainstream Modernism, the makeshift materiality of DIY—the design of the House of the Woodland is a testament to WOJR’s sophistication as well as its resourcefulness. Warm, cozy, but without a trace of preciousness, the project manages a delicate balancing act, in tune both with the beauty of the remote forested site and with the brief’s frank,
no-nonsense attitude.

Project Credits
Project: House of the Woodland, the Berkshires, Mass.
Client: Withheld
Design Architect: WOJR, Cambridge, Mass. . William O’Brien Jr., John David Todd, James Murray
Visualization: D-Render
Size: 2,300 square feet
Cost: Withheld

Upcoming Events

  • Design Smarter: Leveraging GIS, BIM, and Open Data for Better Site Selection & Collaboration

    Live Webinar

    Register for Free
  • Slate Reimagined: The Surprising Advantages of Slate Rainscreen Cladding

    Webinar

    Register Now
  • The State of Residential Design Today: Innovations and Insights from RADA-Winning Architects

    Webinar

    Register for Free
All Events