House of Mr. Lodhi, Gujrat, Pakistan

Project Details

Project Name
House of Mr. Lodhi, Gujrat, Pakistan
Location
GujratPakistan
Project Types
Shared By
Malik
Project Status
On the Boards/In Progress
Size
3,000 ft²

Project Description

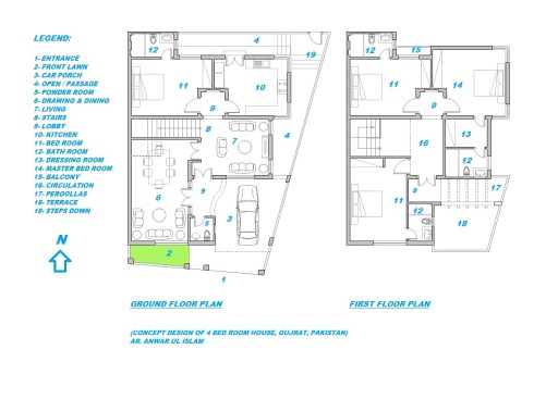
House of Mr. Lodhi, Gujrat, Pakistan

This 4 bedroom house is designed on a plot of irregular shape (not being in rectangular shape). Different offsets are created (along the south side which is slanting) to overcome irregular shape of plot. The rooms are in rectangular shapes and one does not feel that plot is irregular in shape.
To overcome shortage of electricity in Pakistan, solar panels are proposed on roof and LED lights for different rooms.

Upcoming Events

  • Design Smarter: Leveraging GIS, BIM, and Open Data for Better Site Selection & Collaboration

    Live Webinar

    Register for Free
  • Slate Reimagined: The Surprising Advantages of Slate Rainscreen Cladding

    Webinar

    Register Now
  • The State of Residential Design Today: Innovations and Insights from RADA-Winning Architects

    Webinar

    Register for Free
All Events