House of Air

Project Details

Project Name
House of Air
Project Types
Community
Shared By
Xululabs
Project Status
Built
Size
21,440 ft²

Project Description

The owners of House of Air, two 30-something snowboarding entrepreneurs, happily build upon the flight connotations of their new home: a 1921 biplane hangar converted into what they call an indoor trampoline park. The staff wear reflector-embellished fluorescent nylon vests with “FLIGHT CREW” stenciled on the back. When asked the meaning of their logo—a penguin sporting a jetpack—employees recite their tagline with a grin: “We give flight to the flightless.”

Labeled with military flatness, Building 926 is part of a complex of hangars and support buildings tucked in the shadow of the Golden Gate Bridge in San Francisco. Crissy Field, as the area is called, was added to the sprawling Presidio military base on the heels of World War I and played host to a number of aviation firsts before rapidly evolving airplane technology rendered its short field and windy, foggy locale operationally obsolete.

Decommissioned in 1994, the Presidio became part of Golden Gate National Recreation Area. Many of its buildings, including 926, were designated as historic by the National Historic Landmarks Program, which severely limits modifications to the exterior of the buildings, even as the nonprofit Presidio Trust requires LEED certification for any new work on the property.

Mark Horton / Architecture was recommended to the trampoline park’s owners because of the firm’s studies for an unrealized aviation museum in the Crissy Field buildings. Moreover, principal Mark Horton, FAIA, is a strategic thinker who thrives on projects that require industrious invention on tight budgets, a good thing given that half the budget was required to seismically upgrade the light, steel structure holding up the original 6-inch-thick and supposedly bombproof concrete roof. Another quarter of the budget was required for extensive remediation of asbestos and other toxics.

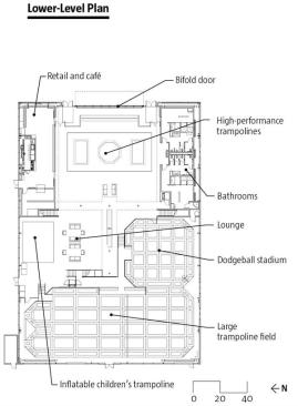
“These guys came to us just wanting to get it built out and up and running. They had no real vision about the design,” Horton says. The architect convinced his clients to spend what was left of the budget on two key ideas: First, a massive 45-foot-wide bifold glass door to replace the original hangar door; second, a pair of interior pavilions framing the most visible of four trampoline areas. The north pavilion contains the check-in station, a café, a shop, and the shoe room (trampolining, like bowling, requires special footwear). The south houses bathrooms and locker rooms.

Given the soaring ceiling, Horton included a set of party rooms and offices on an upper level, serviced by a lift and stairs and connected by a series of catwalks. The catwalk system extends to allow a lively overview of the action on all the trampolines. The full-height pavilion walls are simple white sheetrock for the first 9 feet, they then switch to vivid, blue Polygal affixed to metal studs. Sandwiched in the Polygal wall are randomly scattered, vertically oriented flourescent lights that urge the flyers ever higher and give the entire park a blue glow.

The flightless who take flight on the trampolines at the House of Air range from eight-year-olds burning off steam to adult snow- and skateboarders perfecting their technique. On a typical day, a group of women take aerobics on the field of trampolines that occupies the back third of the hangar; office workers engage in a (mostly) friendly game in the steep-sided dodgeball stadium that occupies the one side of the middle trampoline zone; and a family out for a day of recreation uses the inflatable bounce house (for those too young for the tramps).

For those abstaining from jumping, there is a lounge eclectically furnished with Ikea couches, aluminum picnic tables, plastic children’s tables, and four old ski-lift chairs suspended from the underside of the catwalk. Finally, front and center, are flyers using three high-performance trampolines, known as the Training Ground, for lessons, and competitions.

In nice weather, the bifold door is opened. Exterior signage was severely limited by the historic protocols, but the House of Air needs no other sign than its glowing interior. “We had no idea what a great design could do for us,” says co-owner Paul McGeehan. “Within three days of opening, we were operationally profitable.”

Upcoming Events

  • Design Smarter: Leveraging GIS, BIM, and Open Data for Better Site Selection & Collaboration

    Live Webinar

    Register for Free
  • Slate Reimagined: The Surprising Advantages of Slate Rainscreen Cladding

    Webinar

    Register Now
  • The State of Residential Design Today: Innovations and Insights from RADA-Winning Architects

    Webinar

    Register for Free
All Events