HOUSE NO ‘8’

Project Details

Project Name
HOUSE NO ‘8’
Location
36th Laneoff Shady Grove AvenueColomboSri Lanka00800
Project Types
Single Family
Shared By
Nela De Zoysa
Project Status
Built
Year Completed
2013
Certifications & Designations
Other

Project Description

SITE:
———–
The Site is a 28.1 perch (712 square meter) rectangular site situated at the end of a private road on Shady Grove Avenue/36th Lane, Colombo 8, Sri Lanka.

Northern Boundary : The Site is bounded by a 30 foot approach private roadway with
beautiful cascading “Ehela Tree” (Cassia Fistula) at the entrance
to the House.

Southern Boundary : A direct view of a badly maintained rear compound of a 3 storied
house with laundry lines , that is an ‘eye sore’.

Eastern Boundary : 10 foot high retaining wall bounding a car storage yard for locally
assembled cars. The cars are parked up close to the
boundary retaining wall making it. appear as though cars were
sitting on the retaining wall .

Western Boundary : Two Private Houses designed by other architects.

Site was devoid of vegetation, since a three storey building at the site was demolished.
A beautiful Ehela Tree (Cassia Fistula) with cascades of seasonal yellow blossoms, is growing on the Northern Boundary, besides the proposed entrance to the House, with its sweeping branches spreading over the Entrance, the Garden and Approach road. This Ehela Tree that flanked the Entrance to the House, needed to be manipulated to incorporate it in to the Design. This for sure was the “generator” of the Design.

CLIENTS BRIEF :
————————
1) Three Bedroomed House: a Master Bedroom and Bathroom. Two Visitor
Bedrooms with en-suite Baths (one at the ground level and the other on the upper level)
2) Study and an Audio/Visual (Cinema) Room.
3) Large Living Area: Sitting, Dining and Bar.
4) Pantry, Kitchen and domestic staff accommodation for 2 persons.
5) Laundry / Linen Room and a Drying Deck and a Store Room.
6) Being a lover of cars, a Carport for three vehicles

CONSTRAINTS:
———————–
On the Southern Boundary was a direct view of Laundry Lines at the back of a 3 storied house which needed to be concealed , causing a serious visual blemish.
At the end of the Entrance Road Way on Northern Boundary, and flanking the House was a car storage lot with vehicles parked almost on top of the retaining wall on the Eastern Boundary. That too needed desperately to be masked .

CONSTRUCTION MATERIALS:
——————————————-
The Architect who has been specializing in Intl & National Award Winning Commercial Steel Structures , decided to build ” No : 8 ” using Steel as the Structural Component. The Structure was to be exposed & expressed with its nuts & bolts making a’ feature ‘of it .
This decision certainly restricted the choice of Contractor to those conversant in Steel , who had access to equipment , technology and expertise to do so as in the construction of high rise buildings.

A Double Steel insulated Sandwich Panel Roof was used for Heat & Sound insulation .
The Staircase used Triangular steel sections to achieve structural stability, cantilevered off a exposed steel stringer beam .

The Steel Structure was softened and brought to ‘ domestic level ‘ by the effusive use of a ‘ Irregular Timber Pergola’ that more or less created a ” Rhythm ” giving the House an district ” Identity & Flavor ” .

BEHAVIORAL PATTERNS OF THE PRIMARY USER :
——————————————————————————–
The Architect considered , that the most important factor in a House Design is to observe the behavioral patterns of the Primary User . Both Primary Users kept very late hours, upon returning from work, their pattern was to dine in the Pantry, and then retire to their Bedroom or the AV entertainment Room.
Keeping that aspect in mind, the more ‘ public ‘ entertainment areas : Sitting room, Bar and formal Dining room, were designed to be kept closed in the Eastern Pavilion , to enable easy maintainability.
It is with pride that the Architect states that there was absolutely no alterations to the plan requested by the client, which indeed was an achievement ! For that matter all drawings submitted to the local authorities were cleared and approved in no time.

CONCEPTUAL DESIGN :
————————————–
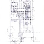
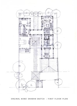
” No : 8 ” is designed as 2 Pavilions , on the East & West , connected by a Structural Glass Link under which of a Ultramarine Blue Reflecting Pool flows . The Pavilions , are enclosed in Glass , giving the house , the necessary permeability it needs to merge the “Outside into the Inside” and visa versa .

The Eastern Pavilion , contains the Verandah , Sitting , Bar & Dining on the ground floor , with the Master Bedroom , Dressing & Master Bath on the first floor with the Study on the Mezzanine accessed through the Master Bed Room .

The Western Pavilion contains , the Triple Car Port , Domestic Accommodation, Kitchen , Pantry , Staircase & Visitor Bedroom & Bath . The Sound Controlled & insulated. A/V Room , Visitors Bed Room & Bath are on the First Level . The Laundry , Drying Deck & Store is housed at the top most level .

An Ultramarine Blue Reflecting Pool by sects the 2 Pavilions and runs under the ” Link ” to originate from a 3 story high Granite Wall that has a Double Cascaded Water Feature that creates a ” Visual Barrier ” masking the view of the rear view of the ugly ‘ Laundry Lines ‘, which in fact is the ” first sight ” upon Entry ! Additionally 4 nos of 20 ft tall majestic “Royal Palms ” are planted on either side of the Water Feature , against a 24 ft high wall with a mesh frame that acts as a back drop with vail of white ” Thumbergia ” , that further strengthens to cover the ghastly sight .

A raised Timber boarded ” Walkway ” runs along the central spine connecting the Red Slatted Entrance Door with the Door of the Main Entrance at the Link over an expanse of Structural Glass creating “ Magical Reflections ” , upon entry .
An ‘ Irregular Timber Pergola ‘ that runs over the Walkway and as a sunshade around the House creates a marvelous ” Rhythm ” , under the Tropical Sun , throwing unbelievable Shadows & Reflections, on the ground ! A dainty creeper containing cascades of ‘Yellow Blossoms’ winds up the slender black steel columns along the Walkway providing the necessary shading.
The other ‘ Constraint ‘ on the Eastern boundary : the view of the Cars sitting on the retaining wall , was successfully blocked out with the 21 ‘ high boundary wall and a mesh frame which too had the ” Veil ” of White ” Thumbergia ” that draped along the Eastern & Southern Boundaries of the House . This feature was extended to the approach road to block the ‘ ugly view ‘ .

Furniture designed by the Architect compliments the Clean Lines of the House while being absolutely simple but unique in appearance . Artwork, Tapestries are also carefully chosen to complement, but not crowd the House . Elegance is spelt around the House , where the Furniture Design is married with into the straight lines of the House .

” RED ” was used on the Entry Door & on the Garage a Door to Contrast & Compliment the predominance of Grey horizontally cut joint less Granite Wall with 5 ” reliefs of Titanium of a Darker Tone, against the cascading Yellow Blossoms . ” RED ” also gives ” No 8 ” a distinct identity in the environs !

RED was also accented in the Living Room , along the main Structural ‘ ring beam ‘ giving it a subtle predominance of colour against the broken Grey ” Titanium ” dressed wall and White Floor, and the elegant white interior . Artwork & Tapestries also echoed splashes of colour ! Predominance of RED glass is seen the Pantry contrasting against the high gloss White & Black surfaces .
Coincidentally , the BMW Z4 35 1S , & VW Golf , echo the ” RED ” against the Grey Granite Wall, stamping down their presence , while a White BMW X3 20 D sits quietly besides !

Flexibility is provided with ‘ Mood Lighting ‘ is on the Finger Tips of a IPad , with the Home Automation System for the intelligent lighting control that is installed .
Finer attention was given to lighting to make the Pavilions ” Float ” in the Environs . Subtle lighting is also placed around the rim of the Waterbody & under the Link , illuminating the water below the Structural Glass creating a stunning effect upon entry .

The horizontally cut Granite faced Garden Wall is also lit in a subtle manner while lights are focussed on the ” Ehela ” Tree , highlighting its wide spreading branches that nestle the ‘Birds-Nests ‘ in abundance .

A diminishing light are used on the Royal Palm and the Water Feature to effectively outline its profile

” No 8 ” provides an unbelievable ” ARCHITECTURAL EXPERIENCE ” that CANNOT be seen & heard , but EXPERIENCED by DAY , with its Magical Shadows & Reflections , and also by night , thus making it ” EXTRAORDINARY ” solution !

G R E E N A R C H I T E C T U R E:
———————————————————–

In ‘ Orientation ‘ it faces North : South direction reducing heat gain . As for ‘ Ventilation ‘,all rooms are designed to have through ventilation . Maximum advantage of ‘ Natural Day Light ‘ is exploited throughout with the use of Large Doors & Windows using Low E Glass to minimize Heat Gain , while White High Gloss Tiled Floors also help to reflect light , maximizing Day Light . The East facing Single Pitched Roofs help to carry 28 nos of Solar Photovoltaic Modules to generate around 800 kwh of ‘Electricity’ thus feeding excess into the National Grid . ‘ Hot Water ‘ is also provided via a series of Solar Panels . ‘ LED Lamps ‘ is used though out the House , to have minimal impact on Electrical consumption while ‘ Intelligent Home Automation System ‘ provides Lighting Control on the touch of a I Pad , thus saving unnecessary usage of Electricity . Independent ‘ Inverter Air Conditioning Units ‘ are used in Individual rooms , to give flexibility & efficiency since only 2 inmates occupy the house . The Structural Elements in this House is Designed to be in Steel , which is a Recyclable Material The Double Steel Sandwich Panel Roof , uses 2″ Polystyrene Insulation against Heat gain & Noise Pollution. White has been chosen as the Roof Colour , to minimize on Radiant Heat . Rain Water is Harvested in the Blue Reflecting Pool, for the Garden . Commercial Timber imported from Malaysia is used on Sun Shades . Recycled Laterite is used on the ‘ Live Walls ‘.

CONCLUSION :
———————–
The success of ” No 8 ” has been the achievement of a Design that flows with much fluidity spatially horizontally & vertically, creating ‘ effective visual effects ‘ while providing the desired comfort levels using natural ventilation . The spatial flow of the House effectively permits the ‘ Interior’ to merge and interact with the ‘ Exterior ‘ & visa versa .

Use of renewable energy , low-e glass and insulation , and energy efficient lighting and appliances saves energy , while creating a comfortable ‘ living space ‘ !

Suns Ray’s & Power is ” Extensively ” used to Save Energy & to Cast a Magical Shadow & Reflections off the series of Irregular Pergola Beams along the raised entrance walkway and sunshades in and around the House creating an Unbelievable Rhythm !

The Design Concept moulds effectively the desired levels of privacy and comfort to be experienced by its two inmates , who value seclusion !

Upcoming Events

  • Design Smarter: Leveraging GIS, BIM, and Open Data for Better Site Selection & Collaboration

    Live Webinar

    Register for Free
  • Slate Reimagined: The Surprising Advantages of Slate Rainscreen Cladding

    Webinar

    Register Now
  • The State of Residential Design Today: Innovations and Insights from RADA-Winning Architects

    Webinar

    Register for Free
All Events