House in the Mountains

Project Details

Project Name
House in the Mountains
Architect
Gluck+
Project Types
Single Family
Project Status
Built
Year Completed
2012
Size
2,850 ft²

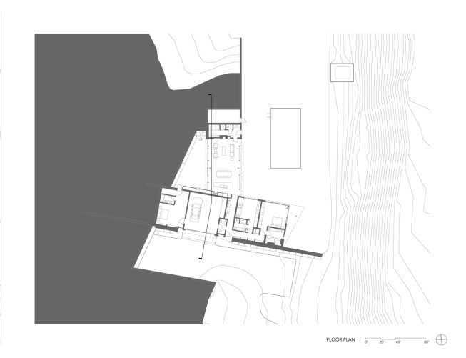
Project Description

Looking to extend the idea of the ‘Landscape House,’ this 2,850 SF guest house in the Rocky Mountains integrates into and accentuates its mountain environment. Two intersecting bar shapes bookend to complete the implied courtyard of the original house, creating a high mountain yard that connects the two structures into a single family gathering place. The East-West bar of the new structure houses three bedrooms and the garage, while the North-South bar encloses the living, dining and kitchen areas. Planes of ‘roof meadow’ render the house practically invisible from the road, preserve and highlight the original view from the existing structure, and provide a super-insulated envelope. Continuous clerestory glass focuses the panorama views and provides a completely day-lit space. A thick solar wall on the South side separates the service side of the building from the main courtyard while creating a secondary space for cars, storage and the harvesting of solar energy. A corten-clad retaining wall slices diagonally across the site, capturing the solar courtyard on one side and forming a private sunken court on the other. The solar panels heat the house and the outdoor pool and hot tub. The pool and interior floors are ‘overheated’ during the day, acting as heat sinks, to avoid mechanical heating at night. An integrated building information system includes real-time sensor information and energy performance that is controlled remotely. This real-time information enables a system to respond to changing environmental conditions and to optimize over time, reducing fossil fuel usage by over 60% as well as energy costs.

Upcoming Events

  • Design Smarter: Leveraging GIS, BIM, and Open Data for Better Site Selection & Collaboration

    Live Webinar

    Register for Free
  • Slate Reimagined: The Surprising Advantages of Slate Rainscreen Cladding

    Webinar

    Register Now
  • The State of Residential Design Today: Innovations and Insights from RADA-Winning Architects

    Webinar

    Register for Free
All Events