House 8, Apan Housing Laboratory

Project Details

Project Name
House 8, Apan Housing Laboratory
Location
Apan Mexico
Project Scope
New Construction
Shared By
Madeleine D’Angelo
Project Status
Built

Project Description

This project is part of the Apan Housing Laboratory, which is featured in the August 2019 issue of ARCHITECT.

FROM THE ARCHITECTS:

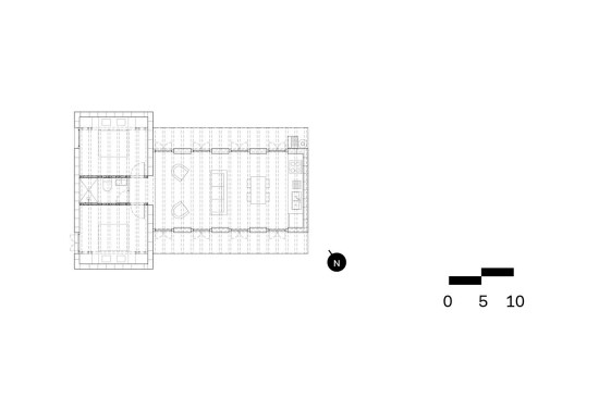
The proposed housing unit explores vernacular materials (CMU, adobe, wood) and construction techniques in two volumes, intersecting in a portico. One of these volumes, horizontal and in CMU, houses social spaces; a vertical, adobe volume houses private programs. The portico at the intersection of these volumes ensures their connection and potential for reconfiguration.

Notes: The primary elements of this project are the volumetric, roomlike rectangular modules central to its organization. Constructed in vernacular adobe blocks and CMU that allow for simple, affordable, and expedient growth in all directions, the house has no clear front. Abundant floor-to ceiling doors afford a porous connection to surrounding landscape and neighboring homes.

Project Details:
State: Tlaxcala
Municipality: Xaltocan
Climate: Temperate
Constructed Surface: 72.11 M2
Floor-to-ceiling height: 2.35 M
Roof Type: Flat
Orientation: —
Growth Option(s): Horizontal
Wall Type: Modulated Adobe Walls
Floor Type: Concrete Slab
Structure: Adobe Walls, CMU Walls, Stone Wall Foundation
Roofing: Considering a Sloped Roof (For Solar Capture)
Details: —
Finishes: —

Project Credits:
Project: Apan Housing Laboratory
Architect: Taller | Mauricio Rocha + Gabriela Carrillo

Upcoming Events

  • Design Smarter: Leveraging GIS, BIM, and Open Data for Better Site Selection & Collaboration

    Live Webinar

    Register for Free
  • Slate Reimagined: The Surprising Advantages of Slate Rainscreen Cladding

    Webinar

    Register Now
  • The State of Residential Design Today: Innovations and Insights from RADA-Winning Architects

    Webinar

    Register for Free
All Events