House 5, Apan Housing Laboratory

Project Details

Project Name
House 5, Apan Housing Laboratory
Location
ApanMexico
Project Scope
New Construction
Shared By
Madeleine D’Angelo
Project Status
Built

Project Description

This project is part of the Apan Housing Laboratory, which is featured in the August 2019 issue of ARCHITECT.

FROM THE ARCHITECTS:

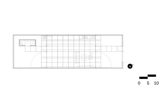
This housing proposal is largely based on two minimum elements understood as requirements for the making of a house: the wall and the roof. While the former delimits private property, the latter offers shelter from sun, rain, and the elements. Designed so that the resident can expand residential space her– or himself through the construction of nonstructural, demountable, and low-cost interior partitions, a base unit collects all programming under a single, clear-span roof. Growth of this element and the personalization of spaces underneath eliminate the standard, repetitive, and impersonal aspects of existing housing types.

Notes: This project expresses each of its primary elements—reduced to the bare essentials of roof, truss, walls, and floor—in distinct materials. All unit growth extends these elements along the project’s length, housing all spaces within a single, clear-span volume. The solidity of exterior, structural walls again suggests an infill site but presents no front or back, creating an internalized site. Free planning of interior partitions and large barn doors on the project’s perimeter wall suggest a variable or conditional, contextual social stance.

Project Details:
State: Chiapas
Municipality: Villaflores
Climate: Warm Semihumid
Constructed Surface: 69.20 M2
Floor-to-ceiling height: 2.19 M
Roof Type: Gable
Orientation: E–W
Growth Option(s): Vertical; Horizontal
Wall Type: CMU Partition Wall
Floor Type: Concrete Slab
Structure: CMU
Roofing: Metal Frame with Corrugated Metal Sheathing
Details: Water-collection System
Finishes: —

Project Credits:
Project: Apan Housing Laboratory
Architects: Ambrosi | Etchegaray

Upcoming Events

  • Design Smarter: Leveraging GIS, BIM, and Open Data for Better Site Selection & Collaboration

    Live Webinar

    Register for Free
  • Slate Reimagined: The Surprising Advantages of Slate Rainscreen Cladding

    Webinar

    Register Now
  • The State of Residential Design Today: Innovations and Insights from RADA-Winning Architects

    Webinar

    Register for Free
All Events