House 32, Apan Housing Laboratory

Project Details

Project Name
House 32, Apan Housing Laboratory
Location
ApanMexico
Architect
DCPP Arquitectos
Project Scope
New Construction
Shared By
Madeleine D’Angelo
Project Status
Built

Project Description

This project is part of the Apan Housing Laboratory, which is featured in the August 2019 issue of ARCHITECT.

FROM THE ARCHITECTS:

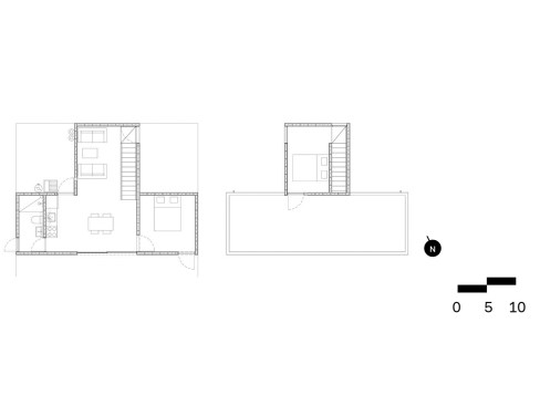
Acknowledging the proximity of its site to the United States, this proposal combines the typological characteristics of standard rural dwellings with (US) American one-level, portico-fronted dwellings toward a new hybrid type. (Local vernacular elements and building materials like rammed-earth block are maintained.) Oriented with its main entry and openings facing south and with all services concentrated along its northern face, the proposed unit is divided into two volumes, one public and one private. Progressive expansion of this unit can occur from either of these spheres, increasing private space following the birth of a child or increasing public space following successful business endeavors. A generous height of 3.25 meters expands the apparent dimension of all interior spaces.

Notes: This project’s primary element—or its main visual and spatial element—is its split wall. Planned as a compact variation of a dogtrot house, its initial unit is clearly organized into two volumes, one public/living and one private/sleeping. Placing its entry at this split, on a windowless facade, the project has a clear front; its rear, by contrast, is almost entirely open to the landscape. All growth extends this original split, or else creates another running perpendicular to the first.

Project Details:
State: Coahuila
Municipality: Zaragoza
Climate: Warm Dry
Constructed Surface: 46.28 M2
Floor-to-ceiling height: 3.26 M
Roof Type: Flat
Orientation: N–S
Growth Option(s): Horizontal
Wall Type: Adoblock (rammed-earth Block)
Floor Type: Concrete Slab
Structure: Adoblock Walls with Concrete
Roofing: Concrete Ring Beam; Wood Joists; Floor System; Galvanized Metal Sheeting; Earthen Insulation and Plastic Water Barrier
Details: Removable Windows; Double panel Door System; Solid Access Doors; Water Storage on Roof
Finishes: —

Project Credits:
Project: House 32, Apan Housing Laboratory
Architects: DCPP Arquitectos

Upcoming Events

  • Design Smarter: Leveraging GIS, BIM, and Open Data for Better Site Selection & Collaboration

    Live Webinar

    Register for Free
  • Slate Reimagined: The Surprising Advantages of Slate Rainscreen Cladding

    Webinar

    Register Now
  • The State of Residential Design Today: Innovations and Insights from RADA-Winning Architects

    Webinar

    Register for Free
All Events