House 28, Apan Housing Laboratory

Project Details

Project Name
House 28, Apan Housing Laboratory
Location
ApanMexico
Architect
Taller ADG
Project Scope
New Construction
Shared By
Madeleine D’Angelo
Project Status
Built

Project Description

This project is part of the Apan Housing Laboratory, which is featured in the August 2019 issue of ARCHITECT.

FROM THE ARCHITECTS:

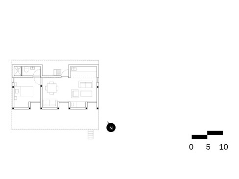
Employing stone, wood, reclaimed brick, adobe, and other vernacular materials this proposal pursues an appropriately contextual finish and design. Composed of six modules—three for housing and three for services—measuring 3×1.2 meters in length, it can expand to address increased needs in either of these spheres.

Notes: This project is reduced three primary elements, each rendered in a distinct material: roof canopy, wall modules, and infill windows. Its organizational rhythm, present in both the base unit and all growth/expansion, results from the repetition of these same primary elements. Extending beyond the home’s enclosing, structural walls the roof provides unprogrammed exterior space for socialization on three of the unit’s four sides. Placed on a concrete plinth, the house appears as an object in (or off) the landscape.

Project Details:
State: Nayarit
Municipality: Xalisco
Climate: Warm Semihumid
Constructed Surface: 41.40 M2
Floor-to-ceiling height: 2.65 M
Roof Type: Flat; Shed
Orientation: —
Growth Option(s): Interior
Wall Type: CMU Block
Floor Type: Concrete Slab
Structure: —
Roofing: Corrugated Metal or Concrete Slab
Details: N/A Finishes: Tile; Stone; Wood; Corrugated Metal; CMU; Concrete; Adobe; Reclaimed Brick

Project Credits:
Project: Apan Housing Laboratory
Architects: Taller ADG

Upcoming Events

  • Design Smarter: Leveraging GIS, BIM, and Open Data for Better Site Selection & Collaboration

    Live Webinar

    Register for Free
  • Slate Reimagined: The Surprising Advantages of Slate Rainscreen Cladding

    Webinar

    Register Now
  • The State of Residential Design Today: Innovations and Insights from RADA-Winning Architects

    Webinar

    Register for Free
All Events